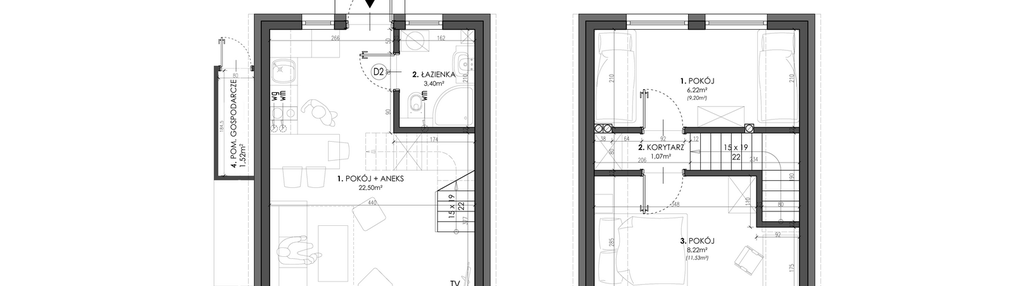
Nowy dom na sprzedaż 3 pokoje Wicie, 49,80 m2, działka 115 m2 - nr D17
Oferta sprzedaży od Sea House Wicie
sławieński, Wicie, ul. Bosmańska

Główne cechy domu
Ważne informacje
Dom i działka
Dodatkowe informacje
Udogodnienia

Plac zabaw

Klimatyzacja
Przyroda

Morze

Las

Jezioro
Inwestycja
Sea House Wicie
zachodniopomorskie, sławieński, Wicie
Domki nad brzegiem morza Zapraszamy do wyjątkowej inwestycji w luksusowe całoroczne domki wolnostojące w malowniczej, nadmorskiej miejscowości Wicie, położonej w gminie Darłowo, zaledwie kilkadziesiąt metrów od urokliwej plaży. Domy są całkowicie wykończone, wyposażone w klimatyzatory, fotowoltaike oraz umeblowane. Ta unikalna inwestycja oferuje nie tylko piękne otoczenie nadmorskiego krajobrazu, ale także wyjątkowe udogodnienia i możliwości wypoczynku
Dostępne domy w tej inwestycji
| Nazwa | Rzut | Pokoje | Powierzchnia | Piętra | Cena | Status |