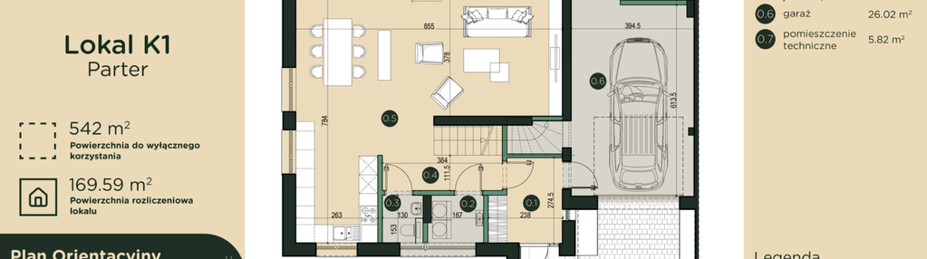
Nowy mieszkanie na sprzedaż 5 pokoi Jastrzębie, 169,02 m2, parter - nr K1
Oferta sprzedaży od Real Invest Development
Rezerwacjapiaseczyński, Jastrzębie, ul. Ptaków Leśnych 18

Główne cechy mieszkania
Ważne informacje
Mieszkanie 5 pokojowe
Dodatkowe informacje
Udogodnienia

Inteligentny dom
Przyroda

Rezerwat przyrody

Las
Inwestycja
Aleja Ptaków Leśnych
mazowieckie, piaseczyński, Jastrzębie
Aleja Ptaków Leśnych to nowoczesna inwestycja, w ramach której powstaje 10 dwulokalowych domów o metrażach od 169 m2 do 175 m2, wraz z przynależnymi ogrodami o wielkościach od 364 m2 do 448 m2. Projekt powstał w oparciu o panujące obecnie trendy architektoniczne oraz potrzeby przyszłych nabywców, takie jak: funkcjonalność wnętrz, spora dawka światła dziennego, poczucie kameralności oraz wysoka jakość materiałów budowlanych. Na kartach lokali znajdziemy: I. Przestronną przestrzeń parteru pozwalającą na dowolną aranżację kuchni, zarówno w formie otwartej, zamkniętej czy odseparowanej wyspą od reszty pomieszczenia. II. Duże przesuwne okna typu HS, skierowane na ogród, co zapewni malowniczy widok z jednoczesnym poczuciem intymności. III. Trzy ustawne i wysokie pokoje sypialne wyposażone w wielkoformatowe okna sięgające od podłogi do sufitu. IV. Jedną z sypialni w standardzie premium, co oznacza indywidulany dostęp do dodatkowej przestrzeni przeznaczonej pod łazienkę i garderobę. V. Sporą powierzchnię gospodarcza, którą można zaaranżować wedle własnych potrzeb w ramach zmian lokatorskich. VI. Duży, jednostanowiskowy garaż oraz miejsce postojowe, na podjeździe. Realizacja projektu przewiduje wykorzystanie nowoczesnych technologii jakimi są pompy ciepła, czy instalacje sanitarne zapewniające ogrzewanie podłogowe. Ponadto każdy z budynków zostanie dostosowany do montażu urządzeń fotowoltaicznych, z czego mieszkańcy będą mogli skorzystać indywidualnie. Aleja Ptaków Leśnych to inwestycja, która powstaje w miejscowości Jastrzębie w bezpośrednim sąsiedztwie Konstancina-Jeziorny. Ulica Ptaków Leśnych, przy której znajduje się inwestycja, w ostatnim czasie została poddana modernizacji, co zwiększa komfort użytkowania drogi, ale również podnosi wartość nieruchomości gruntowych z nią sąsiadujących. Najbliższe sąsiedztwo tworzy zabudowa jednorodzinna. W niedalekiej odległości znajdują się gęste zadrzewnia będące częścią leśnego rezerwatu przyrody Chojnów, w skład których wchodzą liczne pomniki przyrody. Dalsze sąsiedztwo tworzą skupiska stawów wodnych znajdujące się na terenie Konstancina- Jeziorny i Żabieńca. Spokojne otoczenie i bogactwo natury dostępne w pobliżu inwestycji to dla przyszłych mieszkańców okazja do wypoczynku i rekreacji. Jastrzębie, będące częścią gminy Piaseczno, znajduje się zaledwie 20 kilometrów od Warszawy, co oznacza, że zarówno natura, jak i wielkomiejski komfort są w zasięgu ręki. Bliskość Konstancina-Jeziorny, z jego prestiżowymi restauracjami, Parkiem Zdrojowym i tężnią solankową, bez wątpienia podnosi atrakcyjność lokalizacji.
Dostępne domy w tej inwestycji
| Nazwa | Rzut | Pokoje | Powierzchnia | Piętra | Cena | Status |