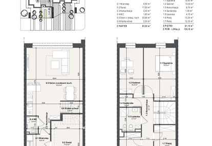
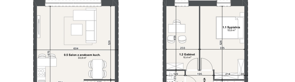
Nowy dom na sprzedaż 5 pokoi Bydgoszcz Nowy Fordon, 126,10 m2 - nr 5b
Oferta sprzedaży od eHome Sp. z o. o.
Bydgoszcz, Nowy Fordon, ul. Bartłomieja z Bydgoszczy

Główne cechy domu
Ważne informacje
Dom i działka
Dodatkowe informacje
Przyroda

Las
Inwestycja
Domy na Przylesiu etap II
kujawsko-pomorskie, Bydgoszcz, Nowy Fordon
4 warianty domów od 116 m² do 172 m² W ofercie domy wolnostojące i w zabudowie bliźniaczej. Każdy z nich ma duże okna, ogródek oraz garaż w bryle budynku. Bliskość natury, z dala od zgiełku Osiedle położone jest w otulinie Puszczy Bydgoskiej, zaledwie 3000 metrów od rzeki. To idealne miejsce do aktywnego wypoczynku i relaksu na łonie natury, bez rezygnacji z miejskich udogodnień. Kilka Minut od Centrum Fordonu Doskonała lokalizacja zapewnia szybki dojazd do sklepów, usług oraz fordońskiego Rynku.
Dostępne domy w tej inwestycji
| Nazwa | Rzut | Pokoje | Powierzchnia | Piętra | Cena | Status |