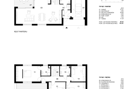
Nowy dom na sprzedaż 4 pokoje Chorzów, 191,97 m2, działka 550 m2 - nr 46
Oferta sprzedaży od Develocity Sp. z o.o
Chorzów, ul. Jałowcowa (2,5km od centrum Chorzowa)

Główne cechy domu
Ważne informacje
Dom i działka
Dodatkowe informacje
Udogodnienia

Inteligentny dom
Przyroda

Las

Park

Jezioro
Inwestycja
Nowe Planty
śląskie, Chorzów
Nowe Planty to wyjątkowe osiedle domów jednorodzinnych o podwyższonym standardzie położone w spokojnej, willowej okolicy, zaledwie 600 m od Parku Śląskiego. Osiedle zostało w całości zaprojektowane przez wielokrotnie nagradzane biuro SLAS Architekci. To jedno z najpiękniejszych miejsc na mapie Górnego Śląska. Łączy w sobie bliskość natury i niemalże bezkorkową komunikację z centrum Katowic i innymi miastami aglomeracji. W ramach inwestycji realizowane są budynki w zabudowie wolnostojącej, bliźniaczej i szeregowej. Do dyspozycji przyszłych mieszkańców oddane zostaną budynki o powierzchni użytkowej od 125 do 236 mkw z przestronnymi, indywidualnymi ogrodami. Domy łączą cechy ekskluzywnych willi z przytulnym charakterem domu jednorodzinnego. Ekologiczne i energooszczędne rozwiązania techniczne zagwarantują mieszkańcom możliwość obniżenia kosztów użytkowania. To jedyna inwestycja, która oferuje klientom fotowoltaikę, pompy ciepła, rekuperację, ogrzewanie podłogowe i ładowarki samochodowe WallBox w standardzie. Informacje techniczne inwestycji: FUNDAMENTY • Fundamenty w postaci żelbetowej płyty fundamentowej ŚCIANY ZEWNĘTRZNE • Ściany wykonane w konstrukcji tradycyjnej murowanej – pustaki z trzpieniami / słupami żelbetowymi. Ściany docieplone styropianem gr. 20 cm, wykończenie tynkiem cienkowarstwowym. • Cokoły pokryte tynkiem cienkowarstwowym • Od wewnątrz wykończone tynkiem gipsowym maszynowym • W pomieszczeniach mokrych wykończone tynkiem gipsowym maszynowym „na ostro” ŚCIANY WEWNĘTRZNE • Ściany wewnętrzne – w konstrukcji tradycyjnej murowanej, wykończone tynkiem gipsowym maszynowym • W pomieszczeniach mokrych wykończone tynkiem gipsowym maszynowym „na ostro” STROPODACH • Stropodach w konstrukcji monolitycznej żelbetowej, izolowany termicznie styropianem w spadku min. gr. 20cm, pokryty membraną. STROP MIEDZYKONDYGNACYJNY • Strop w konstrukcji monolitycznej żelbetowej zgodnie z konstrukcją. Warstwa styropianu min. 8cm, wylewka 5-6cm; TARAS NA PIĘTRZE +1 • Stropodach w konstrukcji monolitycznej żelbetowej, izolowany termicznie styropianem w spadku min. gr. 20cm, pokryty membraną. Na fragmencie tarasu płyty tarasowe (deska kompozytowa lub płytki tarasowe) , poza tarasem żwir płukany TARAS NA PARTERZE • Wykończenie płytami tarasowymi (deska kompozytowa lub płytki tarasowe) POSADZKI • Na parterze i piętrze szlichta cementowa, dylatowana obwodowo na warstwie styropianu; • Warstwy wykończeniowe do indywidualnego zakupu i montażu przez Nabywcę BRAMA GARAŻOWA • Brama garażowa segmentowa ocieplana z napędem (uruchamianie na pilota) DRZWI WEJŚCIOWE • Drzwi zewnętrzne do wiatrołapu częściowo przeszklone z ościeżnicą wyposażoną w zabezpieczenie przeciwwyważeniowe, z podwójnym zamkiem - wkładka C oraz gałka ( z pokrętłem ) OKNA, DRZWI BALKONOWE • Okna / drzwi tarasowe aluminiowe na parterze (2 szt ) przesuwne HST, współczynnik przenikania ciepła dla okien Umax = 0,9 W/m2K • Okna / drzwi balkonowe rozwiewno-uchylne PCV o współczynniku przenikania ciepła dla okien i drzwi balkonowych Umax = 0,9 W/m2K; • Okna stałe PCV (fix) o współczynniku przenikania ciepła dla okien i drzwi balkonowych Umax = 0,9 W/m2K; BALUSTRADY TARASOWE i OKIENNE • Stalowe ocynkowane + malowanie proszkowe; PARAPETY ZEWNĘTRZNE • Parapety zewnętrzne z blachy powlekanej; SCHODY WEWNĘTRZNE • Schody żelbetowe do indywidualnego wykończenia przez Nabywcę. INSTALACJA C.O. • Ogrzewanie podłogowe wodne na parterze i piętrze; • W łazienkach grzejnik typu drabinka + gniazdo elektryczne. Zakup i montaż grzałki elektrycznej pod stronie Nabywcy • W garażu ogrzewanie podłogowe; • Źródło ciepła - pompa ciepła (jednostka zewnętrzna i wewnętrzna) oraz panele fotowoltaiczne; INSTALACJA WODNA I KANALIZACYJNA • Instalacja kanalizacji sanitarnej piony niskoszumowe i podejścia pod armaturę, w przypadku miski ustępowej wyjście z pionu kanalizacyjnego; • Instalacje wody zimnej, ciepłej i cyrkulacyjnej przygotowane do podłączenia armatury na połączenia gwintowe; • Podejścia wody i kanalizacji do urządzeń sanitarnych: poziome odcinki w warstwach podłogowych a pionowe podtynkowo ( za wyjątkiem miski ustępowej), bez białego montażu; • Ścieki sanitarne odprowadzone poprzez przyłącze do sieci kanalizacji sanitarnej w drodze wewnętrznej; • Woda do budynku zapewniona poprzez przyłącze wody z sieci wodociągowej z indywidulanym wodomierzem w budynku (garażu ); • Woda do podlewania terenów zielonych zapewniona poprzez zbiornik retencyjny o poj. min. 5m3 , Wyprowadzenie zasilenia pod pompę. • Odprowadzenie wódy deszczowych z dachów i tarasów poprzez wpusty i rury spustowe ukryte w warstwie izolacji odprowadzane do indywidualnego zbiornika retencyjnego; INSTALACJA WENTYLACYJNA • Wentylacja mechaniczna nawiewno-wywiewna z odzyskiem ciepła (rekuperacja) poprzez anemostaty w sufitach; • Garaż przewietrzany grawitacyjnie; INSTALACJA ELEKTRYCZNA • Zasilanie domu jednorodzinnego będzie zrealizowane kablem ziemnym z indywidualnego złącza kablowo-pomiarowego w granicy działki; • Napięcie zasilania - 230/400V; • Instalacja elektryczna z elementami automatyki „smart”. • Instalacja elektryczna realizowana przewodami kablowymi. Obwody oświetleniowe zakończone listwami zaciskowymi (oprawy oświetleniowe do indywidualnego montażu we własnym zakresie przez Nabywcę). Obwody gniazd 230V i 400V zakończone gniazdami. Przygotowany obwód 400V do podłączenia kuchni elektrycznej zakończony puszką instalacyjną; • Instalacja i montaż paneli fotowoltaicznych wraz ze stelażem • Przygotowane rurarzu pod klimatyzację (1 punkt na parterze). • W garażu gniazdo zasilania 400V • stacja ładowania samochodów elektrycznych • Wszystkie obwody zabezpieczone wyłącznikami różnicowoprądowymi i nadprądowymi w tablicy elektrycznej INSTALACJA TELETECHNICZNA • Od granicy działki do tablicy teletechnicznej zostanie poprowadzona rura osłonowa do kabli telekomunikacyjnych przeznaczona na zaciągniecie światłowodu przez operatora (świadczenie usług telekomunikacyjnych po podpisaniu indywidualnej umowy przez Nabywcę z operatorem); • Koło tablicy elektrycznej zamontowana będzie tablica teletechniczna; • Do gniazd w pokojach sypialnych i salonie od tablicy teletechnicznej doprowadzona będzie instalacja INT; • Do gniazd pokoju dziennego i dużej sypialni na piętrze doprowadzona będzie instalacja RTV/SAT. • Z tablicy teletechnicznej wyprowadzone będą przewody dla anten: telewizyjnej, satelitarnej oraz zamontowany zostanie słupek pod montaż anteny. Zakup i montaż/ podłączenie anten w zakresie Nabywcy. ZAGOSPODAROWANIE TERENU • Ogrodzenie frontowe – częściowe z ażurowymi panelami. Od strony działek sąsiednich ogrodzenie panelowe systemowe. • Furtka na ogród; • Wideodomofon we wnęce wejściowej budynku; • Skrzynka pocztowa; • Wyjście zasilające na lampę zewnętrzną na podjeździe; • Śmietnik w linii ogrodzenia dostępny od strony podjazdu; • Teren działki uprzątnięty i wyrównany; • Nawierzchnie utwardzone – dojście i podjazd – kostka betonowa; ELEMENTY „SMART” • Wideodomofon – panel na parterze • Czujnik temperatury zewnętrznej ( pompa ciepła ); • Sterujący panel wewnętrzny (wideodomofonu) 10’’; • ogrzewanie podłogowe w automatyce; • siłowniki termoelektryczne w rozdzielaczach; • okablowanie pod czujki PIR. Zakup i montaż/ podłączenie czujek w zakresie Nabywcy. • okablowanie i kontaktrony w oknach • okablowanie i 3 kamery zewnętrzne • okablowanie i sygnalizator alarmu. Zakup i montaż / podłączenie panelu operatorskiego alarmu po stronie Nabywcy. • okablowanie pod zasilanie zasłon w oknach w salonie. • dla podstawowej aranżacji zostanie wykonana sieć podwójnego okablowania oraz głębszych puszek elektrycznych umożliwiająca sterowanie dodatkowymi elementami w ramach „smart” (np. sterowanie oświetleniem, roletami, bramą, garażową, itp.). Dodatkowe elementy „smart” poza zakresem Standardu Wykończenia Domu.
Dostępne domy w tej inwestycji
| Nazwa | Rzut | Pokoje | Powierzchnia | Piętra | Cena | Status |