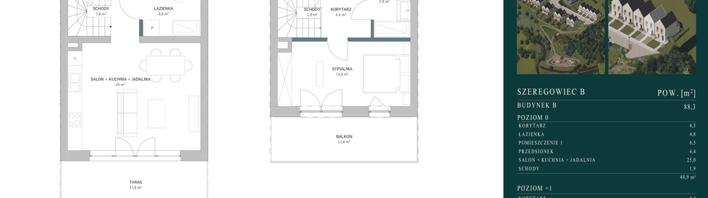
Nowy dom na sprzedaż 4 pokoje Czapury, 88,30 m2, działka 148 m2 - nr SZEREGOWIEC B/B
Oferta sprzedaży od Kamionka Park
Planowanapoznański, Czapury, ul. Gromadzka 32B

Główne cechy domu
Ważne informacje
Dom i działka
Dodatkowe informacje
Udogodnienia

Własna kotłownia

Plac zabaw

Patio / Dziedziniec

Boisko
Przyroda

Las

Park

Rzeka
Inwestycja
Kamionka Park
wielkopolskie, poznański, Czapury
Kamionka Park to inwestycja zlokalizowana nieopodal Poznania, w zielonej i spokojnej miejscowości Czapury. Składa się z zespołu domów jednorodzinnych w zabudowie bliźniaczej i szeregowej. Każdy dom charakteryzuje się wygodnym i funkcjonalnym układem pomieszczeń, który został podzielony na część dzienną – salon z otwartą kuchnią i wyjściem prowadzącym do ogrodu; oraz część prywatną, w której skład wchodzą sypialnie z łazienkami i pomieszczeniami gospodarczymi. Na terenie osiedla zaprojektowano bezpieczny plac zabaw dla najmłodszych, miejscem idealnym do rozwijania pasji i spędzania czasu z najbliższymi. Domy zostały wykonane z najwyższej jakości materiałów, które gwarantują trwałość i niezawodność na długie lata. Charakteryzują się licznymi rozwiązaniami ekologicznymi i energooszczędnymi. Każdy dom wyposażony jest w powietrzną pompę ciepła, gniazda do ładowania samochodów elektrycznych, instalację dostosowaną do założenia paneli fotowoltaicznych, okna trzyszybowe i ogrzewanie podłogowe. W inwestycji przewidziano 2 miejsca postojowe dla każdego lokalu mieszkalnego lub dodatkowe na terenie osiedla dla lokali, przy których nie ma miejsca na prywatne stanowiska dla samochodów.
Dostępne domy w tej inwestycji
| Nazwa | Rzut | Pokoje | Powierzchnia | Piętra | Cena | Status |