Nowy dom na sprzedaż 5 pokoi Grodzisk Mazowiecki, 104,13 m2, działka 180 m2 - nr A.33/44
Oferta sprzedaży od 4P Development Sp. z o.o.
Inwestycja ograniczonaGrodzisk Mazowiecki, ul. Rzymska

Główne cechy domu
Ważne informacje
Dom i działka
Dodatkowe informacje
Przyroda

Las

Park
Inwestycja
Segmenty Rzymska II
mazowieckie, grodziski, Grodzisk Mazowiecki
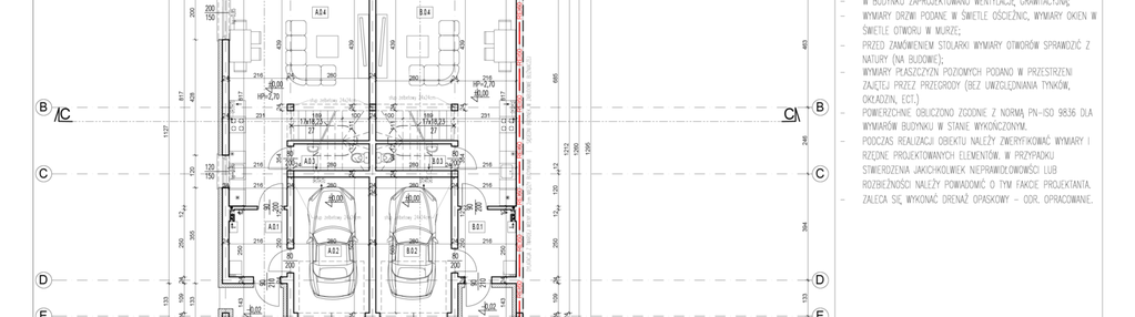
Na sprzedaż 4 nowoczesne segmenty – Grodzisk Mazowiecki, ul. Rzymska, II etap. Powierzchnia: 104,13 m² | 4 pokoje + garaż | Stan deweloperski | Duże działki | Zielona okolica Zapraszamy do zapoznania się z ofertą sprzedaży 4 lokali w zabudowie bliźniaczej dwulokalowej – 2 segmenty skrajne z dużymi ogródkami oraz 2 środkowe. Jest to kontynuacja oddanej pod koniec 2024 inwestycji przy ul. Rzymskiej w Grodzisku Mazowieckim. Każdy lokal ma 104,13 m² i obejmuje: – garaż w bryle budynku, – przestronny salon z aneksem kuchennym, – kotłownię i WC na parterze, – 4 pokoje i łazienkę na piętrze, – dodatkowo: duże, wysokie, nieużytkowe poddasze przydatne jako schowek Standard wykończenia – stan deweloperski: – ogrzewanie podłogowe na parterze, w garażu oraz na piętrze, – nowoczesny piec gazowy kondensacyjny z zasobnikiem na CWU 125 l, – złącza TV i Internetowe w salonie i 2 pokojach na piętrze, – światłowód doprowadzony do skrzynki multimedialnej w garażu, – przygotowanie pod instalację fotowoltaiczną, – pełne uzbrojenie: woda, kanalizacja, gaz, prąd, – wykończony taras z kostki brukowej, – działka ogrodzona, teren wyrównany i przygotowany pod ogród, – dodatkowe miejsce parkingowe na ogrodzonym podjeździe przed lokalem. Działki: – segmenty skrajne: ok. 320 m² – segmenty środkowe: ok. 180 m² Lokalizacja – wygodna komunikacja i cisza jednocześnie: – WKD Okrężna – 1,5 km (3 min autem), – PKP Grodzisk Mazowiecki – 3,9 km (9 min autem), – Wjazd na A2 – 10 km, S8 – 7 km, Grodzisk Mazowiecki to jedno z najprężniej rozwijających się miast pod Warszawą – oferuje pełną infrastrukturę: liczne szkoły, przedszkola, sklepy, centrum kultury, basen i tereny rekreacyjne. Okolica inwestycji to spokojne, zielone osiedle z dostępem do licznych parków, stawów, ścieżek spacerowych i rowerowych – idealne miejsce do życia z dala od miejskiego zgiełku, a jednocześnie świetnie skomunikowane z Warszawą. Ceny: – segment skrajny: 999 000 zł – segment środkowy: 899 000 zł Jesteśmy deweloperem z rachunkiem powierniczym — płacisz zgodnie z harmonogramem tylko za to, co zostało wybudowane. Planowany termin oddania: IV kwartał 2026
Dostępne domy w tej inwestycji
| Nazwa | Rzut | Pokoje | Powierzchnia | Piętra | Cena | Status |