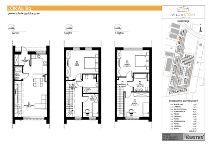
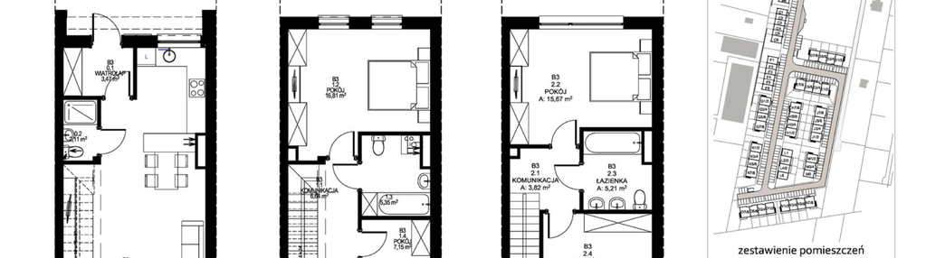
Nowy dom na sprzedaż 5 pokoi Łódź Widzew, 108,78 m2, działka 83 m2 - nr B3
Oferta sprzedaży od Varitex Sp. z o.o.
Łódź, Dolina Łódki, ul. Beskidzka 109 (6,8km od centrum Łodzi)

Główne cechy domu
Ważne informacje
Dom i działka
Dodatkowe informacje
Przyroda

Park
Inwestycja
Villa Stoki (domy)
łódzkie, Łódź, Widzew, Dolina Łódki
Projektując osiedle Villa Stoki zależało nam na stworzeniu przestrzeni oddającej wartości bliskie współczesnej rodzinie. Podeszliśmy więc do zadania z entuzjazmem równym potencjałowi miejsca. Cel był jasny – w wielkomiejskie otoczenie wrysować zaciszne osiedle o wysokich walorach użytkowych i atrakcyjnej formie wizualnej. W rezultacie powstał projekt funkcjonalnej i nowoczesnej szeregowej zabudowy mieszkaniowej jednorodzinnej. Projekt, który z dumą Państwu przedstawiamy. Zespół nowoczesnych w formie budynków jednorodzinnych nawiązuje do prostego ładu miejskiej architektury użytkowej łączącej swobodę i niezależność z komfortem codziennego życia. Starannie dobrane proporcje w elementach przestrzennych i przyjazna stonowana kolorystka odzwierciedlają ducha współczesnego ideału mieszkaniowego. Uporządkowana w ten sposób przestrzeń daje odpoczynek od zgiełku miasta, ciesząc mieszkańców harmonią otoczenia. Osiedle Villa Stoki to przede wszystkim wygodne, przestronne i jasne wnętrza domów, dopasowane do potrzeb swoich mieszkańców. Idealne połączenie najlepszych cech mieszkania i komfortu posiadania własnego domu. Wszystkie domy oferują wysoki standard użytkowy. Ponadto dają możliwość autorskiej, niebanalnej aranżacji wnętrz. Posiadają przytulne ogródki od strony salonów zachęcające do spędzania czasu na zewnątrz, a także podjazdy od frontu zapewniające wygodne parkowanie aut. Osiedle gwarantuje także przyjazną przestrzeń wspólną dla swoich mieszkańców, w postaci chodników, wybudowanych i wykończonych dróg wewnętrznych, małej architektury oraz oświetlenia. Do wyboru pozostają domy o powierzchniach od 95 do 112 m2. Do tego elementu przykładamy szczególną uwagę. Budujemy na lata. Jakość wykonania osiedla Villa Stoki to dla nas wartość sama w sobie, która leży u podstaw bezpieczeństwa i komfortu przyszłych użytkowników. Dlatego odwołujemy się do całego naszego długoletniego doświadczenia w obszarze projektów deweloperskich, które z sukcesem przeprowadziliśmy. Ta wiedza jest naszym kapitałem i gwarancją jakości.
Dostępne domy w tej inwestycji
| Nazwa | Rzut | Pokoje | Powierzchnia | Piętra | Cena | Status |