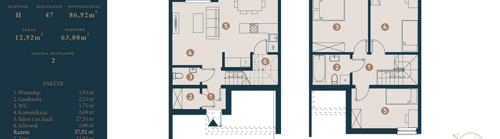
Nowy dom na sprzedaż 4 pokoje Rzeszów Słocina, 86,92 m2 - nr H47
Oferta sprzedaży od GRAND RESIDENCE
Rzeszów, Słocina, ul. Św. Marcina (5,7km od centrum Rzeszowa)

Główne cechy domu
Ważne informacje
Dom i działka
Dodatkowe informacje
Udogodnienia

Plac zabaw
Przyroda

Las
Inwestycja
Dostępne domy w tej inwestycji
| Nazwa | Rzut | Pokoje | Powierzchnia | Piętra | Cena | Status |