Nowy mieszkanie na sprzedaż 5 pokoi Słomin, 92,39 m2, parter - nr 7A
Oferta sprzedaży od Novisa Development Sp. z o.o.
pruszkowski, Słomin, ul. Janczewicka

Główne cechy mieszkania
Opis nieruchomości o powierzchni 92,39 m2
Mieszkanie w inwestycji: Nova Magdalenka 7
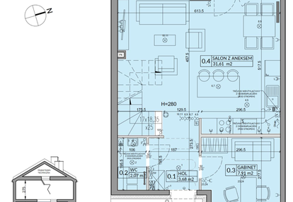
Ten 92-metrowy dom to przestrzeń stworzona dla większej rodziny – każdy znajdzie tu swoje miejsce. Na parterze znajduje się hall, praktyczne WC dla gości, duży gabinet idealny do pracy zdalnej oraz przestronny salon z aneksem kuchennym i jadalnią – serce domu, w którym toczy się życie rodzinne. Piętro to trzy wygodne sypialnie – dla dzieci, dla rodziców, dla każdego, kto potrzebuje własnej przestrzeni. Dopełnieniem jest funkcjonalna łazienka, zapewniająca codzienny komfort. Więcej przestrzeni, więcej wygody.
Ważne informacje
Mieszkanie 5 pokojowe
Dodatkowe informacje
Przyroda

Park
Inwestycja
Nova Magdalenka 7
mazowieckie, pruszkowski, Słomin
Nova Magdalenka 7 – dom w cenie mieszkania pod Warszawą\ Nova Magdalenka 7 to kolejna edycja jednego z największych osiedli domów jednorodzinnych w Polsce – osiedla Nova Magdalenka w Słominie, położonego zaledwie 6 km od granicy Warszawy. To propozycja dla osób, które szukają domu z ogrodem pod Warszawą, ale nie chcą rezygnować z wygodnego dostępu do miasta. Inwestycja realizowana jest przez Novisa Development – lidera w budownictwie jednorodzinnym w Polsce i autora prawdopodobnie największego osiedla segmentów w aglomeracji warszawskiej. Osiedle Nova Magdalenka 7 obejmuje 210 lokali w zabudowie szeregowej, bliźniaczej oraz wolnostojącej, o powierzchni od 65 do 125 m². Każdy dom został zaprojektowany z myślą o komforcie codziennego życia – z przemyślanym układem pomieszczeń i tradycyjnym podziałem stref, wysokością sufitów sięgającą 2,8 metra oraz dostępem do prywatnego ogrodu. Do każdego lokalu przynależą dwa miejsca postojowe naziemne, najczęściej zlokalizowane tuż przy wejściu, co znacząco podnosi wygodę użytkowania. To rozwiązanie stanowi realną alternatywę dla mieszkania w Warszawie – oferując więcej przestrzeni, prywatność i bezpośredni kontakt z zielenią w porównywalnym lub nawet niższym budżecie. Lokalizacja inwestycji to jeden z jej największych atutów. Dzięki bliskości tras ekspresowych S7 i S8 mieszkańcy mogą dotrzeć do centrum Warszawy w około 25–30 minut, a jednocześnie zyskują wygodną bazę wypadową w kierunku południowej i zachodniej Polski. W pobliżu znajduje się także przystanek komunikacji miejskiej, który umożliwia szybki dojazd do węzła przesiadkowego P&R Al. Krakowska. To miejsce, które łączy spokojne życie poza miastem z dobrą komunikacją i dostępem do infrastruktury. Nova Magdalenka 7 to spójna koncepcja nowoczesnego miasteczka. Na jego terenie i w najbliższym sąsiedztwie powstaje pełna infrastruktura, która pozwala mieszkańcom zaspokoić codzienne potrzeby bez konieczności dojazdu do Warszawy. Już we wrześniu 2026 roku rozpocznie działalność przedszkole Montessori zlokalizowane na osiedlu. Tuż obok powstaje park z placem zabaw i starannie zaprojektowaną zielenią, która stworzy przestrzeń do odpoczynku i spacerów. W bezpośrednim sąsiedztwie realizowany jest również Park Handlowy Nova Magdalenka, w którym znajdą się m.in. market, siłownia, piekarnia, barber, fryzjer czy pralnia, a część lokali usługowych pozostaje jeszcze otwarta na kolejne funkcje. Dodatkowym udogodnieniem jest bliskość sklepu Żabka oraz automatu paczkowego. Architektura osiedla jest subtelna i nowoczesna, z dbałością o detale, które nadają całości eleganckiego charakteru. Charakterystyczne ryflowania przy oknach czy stolarka w kolorze dębu sprawiają, że zabudowa jest spójna, ale jednocześnie ma elementy wyróżniające. Duży nacisk położono również na części wspólne i zieleń – projektowane przez doświadczonego architekta krajobrazu, tak aby tworzyły funkcjonalną i przyjazną przestrzeń dla mieszkańców. Novisa Development realizuje inwestycję w oparciu o autorski Zintegrowany Proces Budowy, który został wypracowany na bazie ponad 25 lat doświadczenia oraz tysięcy rozmów z klientami. Wszystkie etapy inwestycji są powtarzalne, dopracowane i realizowane przez własne zespoły – od projektu, przez wykonawstwo, aż po sprzedaż i obsługę klienta. Firma działa w modelu w pełni wewnętrznym, co przekłada się na wysoką jakość komunikacji i pełną kontrolę nad procesem. Po zakupie mieszkańcy mogą liczyć na realne wsparcie – deweloper posiada własne ekipy serwisowe i nie przerzuca odpowiedzialności na zewnętrznych wykonawców. Istnieje możliwość zakupu domu z wykorzystaniem Rodzinnego Kredytu Mieszkaniowego. Dzięki temu rozwiązaniu wkład własny może wynosić około 30 000 zł, a jego brakująca część może zostać objęta gwarancją BGK. Program przewiduje również możliwość częściowej spłaty kredytu przez państwo w przypadku powiększenia rodziny, co w praktyce może oznaczać nawet 60 000 zł wsparcia. To realna szansa na rozpoczęcie życia we własnym, przestronnym domu z ogrodem bez konieczności angażowania dużych oszczędności na start. Nova Magdalenka 7 to jedno z najpopularniejszych osiedli segmentów z ogródkami pod Warszawą – projekt, który łączy sprawdzoną jakość wykonania, funkcjonalność i rozwijającą się infrastrukturę. Jeśli chcesz sprawdzić, jak wygląda zakup konkretnego domu i dopasowanie finansowania do Twojej sytuacji, zostaw kontakt – przeprowadzimy Cię przez cały proces krok po kroku.
Dostępne domy w tej inwestycji
| Nazwa | Rzut | Pokoje | Powierzchnia | Piętra | Cena | Status |