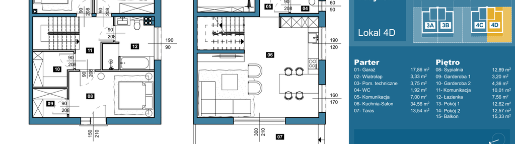
Nowy dom na sprzedaż 4 pokoje Konarzyce, 131,85 m2, działka 240 m2 - nr 4D
Oferta sprzedaży od SG Projekt Sp. z o.o.
łomżyński, Konarzyce, ul. Migdałowa


Główne cechy domu
Ważne informacje
Dom i działka
Inwestycja

Osiedle Konarzyce etap II
podlaskie, łomżyński, Konarzyce
Domy o powierzchni 131,85 m², znajdują się na działkach o powierzchni około 240 m², co daje wiele możliwości aranżacyjnych ogrodu oraz przestrzeni rekreacyjnej. Budynki są w stanie deweloperskim, co pozwala na indywidualne wykończenie wnętrz według własnych potrzeb i gustów. Domy wyposażone w pompę ciepła firmy Buderus oraz panele fotowoltaiczne 2 kW. Media + Ogrzewanie: Woda, kanalizacja (szambo), prąd Instalacja c.o.: Ogrzewanie podłogowe w całym budynku (parter, piętro, garaż)
Dostępne domy w tej inwestycji
Nazwa | Rzut | Pokoje | Powierzchnia | Piętra | Cena | Status |