Nowy dom na sprzedaż 4 pokoje Świniarsko, 114,80 m2, działka 620 m2 - nr 2
Oferta sprzedaży od Eko In Sp. z o.o.
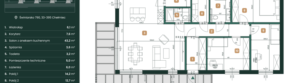
Inwestycja ograniczonanowosądecki, Świniarsko, ul. Świnarsko 790

Główne cechy domu
Ważne informacje
Dom i działka
Inwestycja
Domy na Gaju
małopolskie, nowosądecki, Świniarsko
Domy na Gaju to kameralna inwestycja 4 domów parterowych zaprojektowana z myślą o rodzinach, które cenią komfort, bezpieczeństwo i oszczędność energii. Każdy dom znajduje się na własnej, ogrodzonej działce o powierzchni przekraczającej 600 m², z automatyczną bramą wjazdową i przestronnym tarasem. Gwarancja energooszczędności W naszych domach stawiamy na nowoczesne technologie i najwyższej jakości materiały, które przekładają się na niższe rachunki i doskonały komfort życia. - Ciepły fundament – minimalizuje straty ciepła od gruntu - Izolacja termiczna stanowi 80% grubości ściany zewnętrznej - nasze ściany mają lepsze właściwości, zatrzymując ciepło dwa razy lepiej niż tradycyjne ściany. Tradycyjne ściany mają przenikalność cieplną na poziomie U = 0,30, a nasze mają U = 0,15. Dzięki temu zmniejszamy ryzyko powstawania mostków termicznych - Pompa ciepła - Nowoczesny i efektywny system ogrzewania, który zużywa mniej energii na dostarczenie ciepła i jednocześnie pozwala zadbać o środowisko, ponieważ nie emituje spalin - Rekuperacja - Nowoczesna wentylacja mechaniczna zapewniająca stały dopływ świeżego powietrza i jednocześnie odzyskująca ciepło ze zużytego powietrza - Stolarka okienna i drzwiowa - wysokie parametry termiczne stolarki okiennej i drzwiowej w połączeniu z „ciepłym montażem” skutecznie uszczelniają budynek Nowoczesny projekt wnętrz Współpracujemy z architektami wnętrz, aby stworzyć przestrzeń łączącą nowoczesny design, maksymalną funkcjonalność i wygodę na co dzień. - Rozbudowana instalacja elektryczna – umożliwia łatwe dodawanie nowych urządzeń i oświetlenia - Duże pokoje dziecięce – zapewniają swobodę aranżacji, komfort nauki i przestrzeń do zabawy - Kuchnia z wyspą – dodatkowa przestrzeń robocza i miejsce do wspólnego spędzania czasu - Spiżarka i pomieszczenie gospodarcze – wygodne rozwiązania do przechowywania Przestronna działka Dbamy o każdy detal otoczenia, byś mógł w pełni cieszyć się prywatnością i wypoczynkiem na świeżym powietrzu. - Taras z pergolą – stwórz przytulne miejsce do relaksu i spotkań z bliskimi - Dwa miejsca parkingowe i własny podjazd – wygoda na co dzień i brak problemów z parkowaniem - Ogrodzenie z bramą automatyczną – poczucie bezpieczeństwa i pełna kontrola nad wjazdem - Weranda – pomaga ograniczyć nagrzewanie południowej strony domu, zapewniając przyjemny chłód w upalne dni Komfort i bezpieczeństwo W naszych domach stawiamy na rozwiązania, które zapewniają ciszę, spokój i ochronę na najwyższym poziomie. - Wysoka izolacja akustyczna - materiały o zróżnicowanej gęstości, doskonale tłumią dźwięki, gwarantując spokojną i komfortową atmosferę w środku domu - Wysoka odporność na ogień - drewno KVH, płyta włóknowo-gipsowa i niepalna wełna skalna mają wysoką odporność na ogień. Dzięki nim budynek jest dobrze chroniony przed ogniem. - Regulacja wilgotności - w naszych domach wilgoć jest naturalnie regulowana dzięki materiałom, które „oddychają”. Drewno wchłania nadmiar wilgoci, gdy jest jej za dużo, a oddaje ją, gdy powietrze jest zbyt suche. - System alarmowy - domy są przygotowane do uzbrojenia systemu alarmowego
Dostępne domy w tej inwestycji
| Nazwa | Rzut | Pokoje | Powierzchnia | Piętra | Cena | Status |