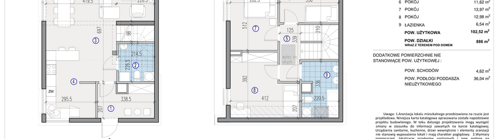
Nowy mieszkanie na sprzedaż 4 pokoje Nadolice Małe, 102,52 m2, parter - nr 63
Oferta sprzedaży od Sagaris Constructions Sp. z o.o.
wrocławski, Nadolice Małe, ul. Wrocławska

Główne cechy mieszkania
Ważne informacje
Mieszkanie 4 pokojowe
Dodatkowe informacje
Udogodnienia

Klimatyzacja

Plac zabaw

Inteligentny dom
Inwestycja
Osada Nadolicka
dolnośląskie, wrocławski, Nadolice Małe
Osada Nadolicka to unikatowe zamknięte osiedle składająca się z domów wolnostojących, bliźniaków oraz szeregowców. Stworzona dla miłośników klimatycznych miejsc, z dala od miejskiego zgiełku. Nowoczesna bryła, ekologiczne rozwiązania i wysoki standard tworzą to miejsce wymarzonym do życia. Ogromnym atutem jest nie tylko piękna bryła i okolica inwestycji, ale także urbanistyka osiedla i jego zagospodarowanie. Inwestycja w etapie I będzie składać się z 63 domów, projektowanych wg najnowszych trendów na wzór nowoczesnej stodoły. Ponadstandardowa wysokość sypialni i duże przeszklenia pozwolą cieszyć się światłem dziennym i piękną panoramą okolicy. Idealnie dobrane kolory elewacji stworzą harmonijną całość z zielenią przydomowych ogrodów. Zamknięte osiedle pozwoli cieszyć się bezpieczeństwem przyszłym mieszkańcom. Dodatkowym miejscem do wypoczynku będą balkony i tarasy. Najmniejsza powierzchnia domu to 93 m2, natomiast największa to aż 146 m2, funkcjonalnie zaprojektowanej przestrzeni. Duża rozpiętość dostępnych metraży sprawia, że wybór odpowiedniej powierzchni dla Ciebie nie będzie problemem. W inwestycji zaprojektowano dwa rozwiązania dla zmotoryzowanych- garaże lub miejsca parkingowe zewnętrzne. Podwyższony standard obejmuje panele fotowoltaiczne oraz klimatyzację w każdym budynku. W naszej inwestycji, będziesz mógł wykończyć dom z zastosowaniem inteligentnych rozwiązań. W osiedle wpisane są rozległe tereny zielone oraz strefy wypoczynku. Mieszkańcy Osady Nadolickiej znajdą tu balans i wytchnienie od codziennego pędu. Pospacerujesz na naszej dedykowanej ścieżce, a na ławeczkach przy niej porozmawiasz z sąsiadem lub poczytasz ulubioną książkę. Jedynym z kluczowych atutów są strefy wypoczynku. Spędzisz tam czas z rodziną, czworonożnym przyjacielem oraz aktywnie uprawiając sporty. Tak dużo urozmaiceń gwarantuje możliwość relaksu na świeżym powietrzu.
Dostępne domy w tej inwestycji
| Nazwa | Rzut | Pokoje | Powierzchnia | Piętra | Cena | Status |