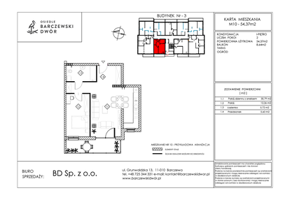
Nowe mieszkanie na sprzedaż 2 pokoje Barczewo, 54,37 m2, 1 piętro - nr M10
Oferta sprzedaży od BD Sp. z o.o.
Barczewo, ul. Magnacka 3

Główne cechy mieszkania
Ważne informacje
Mieszkanie 2 pokojowe
Dodatkowe informacje
Udogodnienia

Usługi w budynku

Plac zabaw

Winda
Inwestycja
Osiedle Barczewski Dwór etap III
warmińsko-mazurskie, olsztyński, Barczewo
Osiedle zbudowane z myślą o Tobie Nasi projektanci zadbali, aby układy mieszkań były funkcjonalne a dzięki dużym przeszkleniom doskonale doświetlone. W apartamentach na górnych kondygnacjach cieszył będzie przyszłych mieszkańców panoramiczny widok na okoliczną zieleń i lasy. Do każdego mieszkania przylega duży balkon ok. 9 m2 a mieszkania na parterze będą miały przynależne, ogrodzone ogródki o powierzchniach od 43 m2 do 80 m2 , w których przyszły właściciel może stworzyć zieloną oazę – strefę relaksu i odpoczynku.
Dostępne mieszkania w tej inwestycji
| Nazwa | Rzut | Pokoje | Powierzchnia | Piętro | Cena | Status |