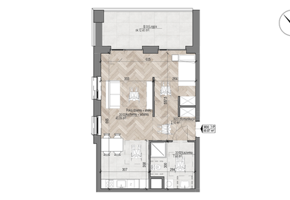
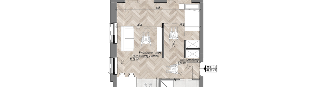
Nowe mieszkanie na sprzedaż 1 pokój Białystok Centrum, 49,87 m2, 1 piętro - nr 30
Oferta sprzedaży od PPUH Kombinat Budowlany Sp. z o.o.
RezerwacjaBiałystok, Centrum, ul. Czysta (1,2km od centrum Białegostoku)

Główne cechy mieszkania
Ważne informacje
Mieszkanie 1 pokojowe
Dodatkowe informacje
Udogodnienia

Usługi w budynku

Winda
Inwestycja
Apartamenty Czysta
podlaskie, Białystok, Centrum
Apartamenty Czysta to kameralna inwestycja zlokalizowana przy ul. Czystej w Białymstoku — w miejscu, które łączy bliskość centrum z codziennym spokojem. Czterokondygnacyjny budynek obejmuje tylko 49 przestronnych mieszkań, zaprojektowanych z myślą o komforcie i wysokiej jakości życia w mieście. Architektura budynku została starannie zaprojektowana, by harmonijnie wpisać się w otoczenie, a nowoczesna elewacja i dopracowane części wspólne podkreślają jego elegancki, kameralny charakter. W budynku przewidziano cichobieżne windy z dostępem do garażu podziemnego, salę zabaw dla dzieci oraz funkcjonalne przestrzenie wspólne, sprzyjające codziennemu komfortowi mieszkańców.
Dostępne mieszkania w tej inwestycji
| Nazwa | Rzut | Pokoje | Powierzchnia | Piętro | Cena | Status |