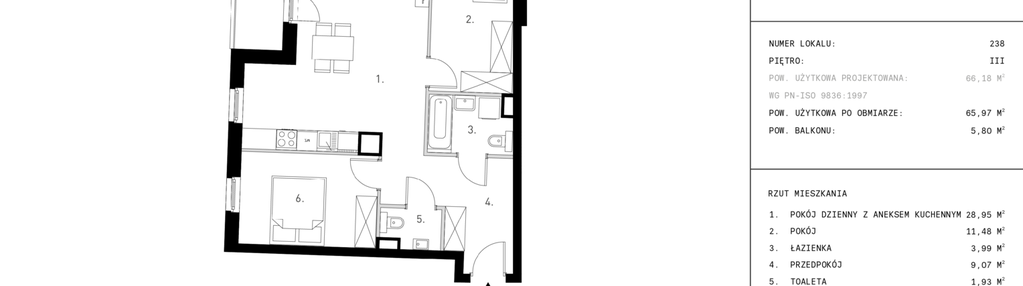
Nowe mieszkanie na sprzedaż 3 pokoje Białystok Sienkiewicza, 65,97 m2, 3 piętro - nr 3.A25-238
Oferta sprzedaży od Strus Development Sp. z o.o.
Białystok, Sienkiewicza, ul. Jurowiecka 22 (0,7km od centrum Białegostoku)

Główne cechy mieszkania
Ważne informacje
Mieszkanie 3 pokojowe
Dodatkowe informacje
Udogodnienia

Winda
Inwestycja
Jurowiecka 22
podlaskie, Białystok, Sienkiewicza
Jurowiecka 22 to starannie zaprojektowany zespół dwóch budynków o nowoczesnej architekturze wpisującej się w charakter rozwijającego się Białegostoku. Dodatkowo urządzony estetyczny dziedziniec z pieszym utwardzonym ciągiem komunikacyjnym i bogatymi elementami małej architektury stworzą kameralną atmosferę. Projektowane mieszkania będą miały zróżnicowane metraże oraz układy od jednego do czterech pokoi, co pozwoli przyszłym mieszkańcom, na wybór lokum doskonale dostosowanego do indywidualnych potrzeb. Każde z mieszkań, niezależnie od powierzchni, posiadać będzie balkon lub taras. Na parterze zaprojektowano lokale usługowe. W trosce o potrzeby osób zmotoryzowanych przewidziano miejsca postojowe w garażu naziemnym i podziemnym, a dogodne usytuowanie w obrębie najważniejszych szlaków komunikacyjnych i zasięgu transportu miejskiego, gwarantuje doskonały dostęp do wszystkich zakątków miasta. To istniejące od wielu lat i wciąż rozwijające się osiedle posiada już praktyczną i rozwiniętą infrastrukturę.
Dostępne mieszkania w tej inwestycji
| Nazwa | Rzut | Pokoje | Powierzchnia | Piętro | Cena | Status |