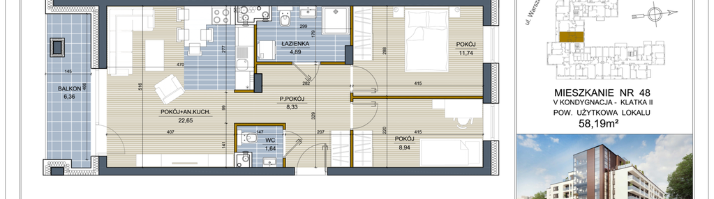
Nowe mieszkanie na sprzedaż 3 pokoje Białystok Piasta II, 58,19 m2, 4 piętro - nr 48
Oferta sprzedaży od Yuniversal Podlaski Sp. z o.o.
Inwestycja ograniczonaBiałystok, Piasta II, ul. Warszawska (1,1km od centrum Białegostoku)

Główne cechy mieszkania
Ważne informacje
Mieszkanie 3 pokojowe
Dodatkowe informacje
Udogodnienia

Usługi w budynku

Winda
Inwestycja
Apart Warszawska
podlaskie, Białystok, Piasta II
Apart Warszawska powstanie w odległości zaledwie kilkuset metrów od Pałacu Branickich oraz centrum miasta, na skraju dzielnicy Białegostoku Piasta II – u zbiegu ulic Warszawskiej i Piastowskiej. W częściowo 4- oraz 6-piętrowym budynku znajdzie się 75 mieszkań o powierzchni od 28 do 96 m2, a także komórki lokatorskie. Budynek oczywiście wyposażony będzie w cichobieżne windy. W garażu wielostanowiskowym na poziomie 0 oraz -1 przewidziano do zakupu miejsca postojowe. W parterze budynku funkcjonować będzie 10 lokali usługowych o powierzchni już od 18 do 111 m2. Inwestycja położona jest w doskonałej lokalizacji, gdzie dojazd do centrum Białegostoku zajmuje ok. dwie minuty. W niedalekim sąsiedztwie budynku znajdują się sklepy spożywcze, punkty usługowe i lokale gastronomiczne, a w odległości 400 metrów - Atrium Biała.
Dostępne mieszkania w tej inwestycji
| Nazwa | Rzut | Pokoje | Powierzchnia | Piętro | Cena | Status |