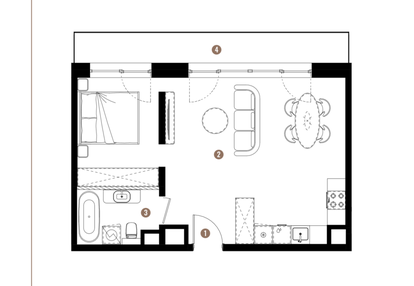
Nowe mieszkanie na sprzedaż 1 pokój Bielsko-Biała, 44,72 m2, 6 piętro - nr F.B.06.147
Oferta sprzedaży od Resi Capital S.A.
Bielsko-Biała, ul. Rejtana (1,4km od centrum Bielska-Białej)

Główne cechy mieszkania
Ważne informacje
Mieszkanie 1 pokojowe
Dodatkowe informacje
Udogodnienia

Plac zabaw

Winda
Przyroda

Góry

Park

Las
Inwestycja
Apartamenty Reytana bud. F
śląskie, Bielsko-Biała
Od loftów po zielone tarasy. Apartamenty Reytana to harmonijne połączenie współczesnej architektury z historycznym charakterem dawnej fabryki maszyn włókienniczych w Bielsku-Białej. W ofercie znajdują się zarówno kameralne, loftowe mieszkania w budynku historycznym, jak i zróżnicowane metraże w nowej, kaskadowej zabudowie z zielonymi tarasami.
Dostępne mieszkania w tej inwestycji
| Nazwa | Rzut | Pokoje | Powierzchnia | Piętro | Cena | Status |