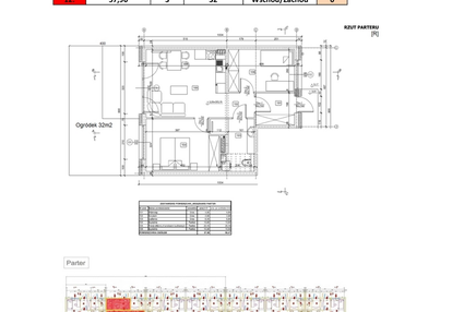
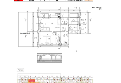
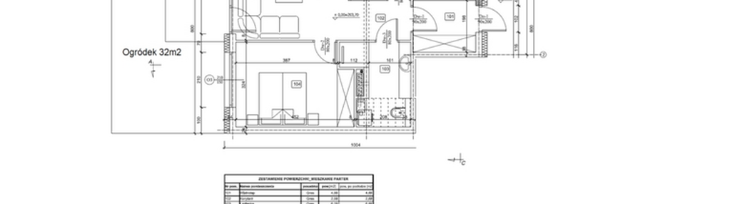
Nowe mieszkanie na sprzedaż 3 pokoje Biłgoraj, 57,90 m2, parter - nr 42/12
Oferta sprzedaży od SASS ZRBPHU Ryszard Sass
Biłgoraj, ul. Kochanowskiego 42

Główne cechy mieszkania
Ważne informacje
Mieszkanie 3 pokojowe
Inwestycja
Ogrody Kochanowskiego
lubelskie, biłgorajski, Biłgoraj
Nowoczesne mieszkania z ogródkiem lub tarasem w dzielnicy Ogrody! Ogrody Kochanowskiego to kameralna inwestycja mieszkaniowa przy ul. Kochanowskiego w dzielnicy Ogrody w Biłgoraju. To propozycja dla osób, które szukają nowoczesnego mieszkania w spokojnej okolicy, blisko centrum miasta, bez tłoku i przypadkowej zabudowy. Kameralna zabudowa i większa prywatność Inwestycja składa się z 7 budynków dwulokalowych w nowoczesnej zabudowie szeregowej. Niewielka liczba mieszkań oznacza większą prywatność i komfort codziennego życia. To realna alternatywa dla bloków – z własną przestrzenią i poczuciem niezależności. Dostępne warianty mieszkań: ogródek lub taras na dachu W ofercie dostępne są dwa funkcjonalne warianty mieszkań: Lokale na parterze o powierzchni 57,90 m², 3 pokoje oraz prywatny ogródek o powierzchni 32 m², idealny do codziennego wypoczynku i spędzania czasu na świeżym powietrzu. Mieszkania na pierwszym piętrze mają 66,85 m², 4 pokoje oraz taras na dachu o powierzchni 56,30 m², który stanowi pełnoprawną, prywatną przestrzeń rekreacyjną. Układy mieszkań zostały zaprojektowane z myślą o wygodnym, codziennym użytkowaniu. Przestronne salony, ustawne pokoje i czytelny podział stref sprawiają, że mieszkania są funkcjonalne i łatwe do aranżacji. Wysoki standard wykończenia W standardzie zastosowano ogrzewanie gazowe podłogowe, zapewniające równomierny komfort cieplny w całym lokalu oraz pełną swobodę aranżacyjną wnętrz. Duże okna trzyszybowe gwarantują doskonałe doświetlenie pomieszczeń, dobrą izolację cieplną i akustyczną oraz niższe koszty użytkowania. Mieszkania są wyposażone w nowoczesne instalacje medialne. Do każdego lokalu doprowadzony jest światłowód, umożliwiający szybki i stabilny dostęp do internetu, a także wykonana jest instalacja antenowa pod telewizję, gotowa do podłączenia bez dodatkowych prac. Cała inwestycja realizowana jest zgodnie z aktualnymi normami budowlanymi, z użyciem sprawdzonych technologii i materiałów. Teren osiedla jest ogrodzony, co podkreśla jego kameralny charakter i zapewnia poczucie prywatności. Ogrody Kochanowskiego to propozycja dla osób, które chcą kupić mieszkanie gotowe na lata – w dobrej lokalizacji, z własną przestrzenią na zewnątrz i realną jakością wykonania.
Dostępne mieszkania w tej inwestycji
| Nazwa | Rzut | Pokoje | Powierzchnia | Piętro | Cena | Status |