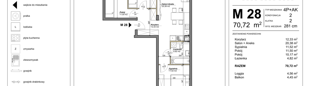
Nowe mieszkanie na sprzedaż 4 pokoje Chełm, 70,72 m2, 1 piętro - nr 28
Oferta sprzedaży od PW Sanitex Sp. z o.o.
Chełm, ul. Reformacka (1km od centrum Chełmna)

Główne cechy mieszkania
Ważne informacje
Mieszkanie 4 pokojowe
Dodatkowe informacje
Udogodnienia

Klimatyzacja

Winda
Inwestycja
Nowa Reformacka
lubelskie, Chełm
Budynek będzie posiadał garaż podziemny, zapewniający bezpośredni dostęp każdemu z mieszkańców do miejsc parkingowych. Trzykondygnacyjny obiekt będzie wyposażony w trzy windy ułatwiające komunikację osobom starszym, niepełnosprawnym oraz rodzinom z małymi dziećmi i zapewniające bezpośredni zjazd do garażu. Zakładamy możliwość wykonania na indywidualne zamówienie klimatyzacji dla każdego z oferowanych mieszkań. Budowany przez nas obiekt znajduje się w sąsiedztwie lokalizacji wielu obiektów, które z pewnością ułatwią przyszłym mieszkańcom codzienne funkcjonowanie.
Dostępne mieszkania w tej inwestycji
| Nazwa | Rzut | Pokoje | Powierzchnia | Piętro | Cena | Status |