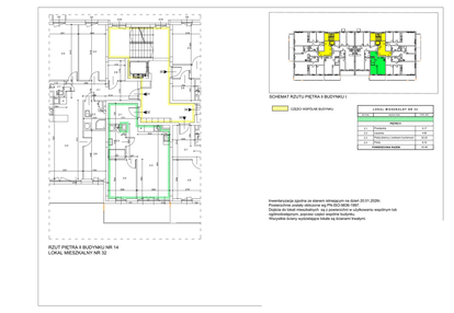
Nowe mieszkanie na sprzedaż 2 pokoje Chorzów, 42,48 m2, 2 piętro - nr B12
Oferta sprzedaży od Platforma Mieszkaniowa
Chorzów, ul. Lwowska 14 (0,6km od centrum Chorzowa)

Główne cechy mieszkania
Ważne informacje
Mieszkanie 2 pokojowe
Dodatkowe informacje
Udogodnienia

Winda
Inwestycja
Lwowska 14
śląskie, Chorzów
W projekcie zadbaliśmy o przestronne, funkcjonalne układy mieszkań o powierzchni od 36m2 do 93m2. Mieszkania składają się z 2, 3 lub 4 pokoi tak, aby każdy mógł wybrać coś dla siebie. Nie zabraknie też dużych balkonów, tarasów oraz wysokich przeszkleń. Budynek zostanie wyposażony w windę, a mieszkańcy będą korzystać z miejsc postojowych w podziemnej hali garażowej i przed budynkiem. Trzypiętrowy budynek został podzielony na 2 klatki - na każdym z pięter znajduje się tylko 4 lub 5 mieszkań. • kameralna zabudowa, willowa okolica w sąsiedztwie Parku Śląskiego • przestronne, funkcjonalne układy mieszkań • wysokie pomieszczenia • ogrzewanie podłogowe
Dostępne mieszkania w tej inwestycji
| Nazwa | Rzut | Pokoje | Powierzchnia | Piętro | Cena | Status |