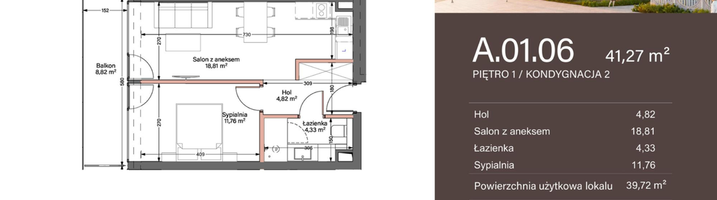
Nowe mieszkanie na sprzedaż 2 pokoje Darłowo, 39,72 m2, 1 piętro - nr A.1.06
Oferta sprzedaży od Masterm
Darłowo, ul. Kąpielowa 11 (2,5km od centrum Darłowa)

Główne cechy mieszkania
Ważne informacje
Mieszkanie 2 pokojowe
Dodatkowe informacje
Udogodnienia

Sauna

Klimatyzacja

Winda
Przyroda

Morze
Inwestycja
Apollo Residence
zachodniopomorskie, sławieński, Darłowo
Apollo Residence to luksusowy apartamentowiec utrzymany w 5-gwiazdkowym standardzie, umiejscowiony w atrakcyjnej lokalizacji, tuż przy plaży Darłówka Wschodniego. Możliwość wykończenia pod klucz. Większość apartamentów będzie posiadać widok na morze. Parametry inwestycji: Pierwsza linia brzegowa. Blisko las oraz łąka. Ścieżka rowerowa, kawiarnie, restauracje, basen w pobliżu, stojaki na rowery, domofony, taras na dachu dla mieszkańców, antresole, blisko deptak oraz centrum. Jacuzzi na dachu, sauna na dachu. Leżaki na dachu, recepcja
Dostępne mieszkania w tej inwestycji
| Nazwa | Rzut | Pokoje | Powierzchnia | Piętro | Cena | Status |