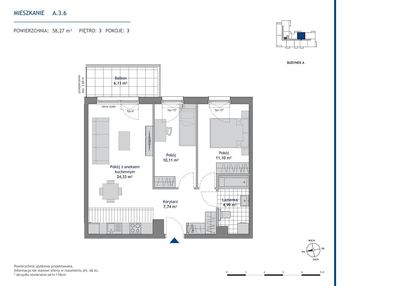
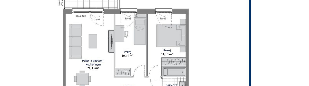
Nowe mieszkanie na sprzedaż 3 pokoje Gdańsk Jasień, 58,27 m2, 3 piętro - nr A.3.6
Oferta sprzedaży od Platforma Mieszkaniowa
Inwestycja ograniczonaGdańsk, Jasień, ul. Kiedrowskiego (5km od centrum Gdańska)

Główne cechy mieszkania
Ważne informacje
Mieszkanie 3 pokojowe
Dodatkowe informacje
Udogodnienia

Plac zabaw

Winda

Rowerownia

Usługi w budynku
Przyroda

Rezerwat przyrody
Inwestycja
Linea bud. A
pomorskie, Gdańsk, Jasień
LINEA to nowoczesne osiedle na granicy Moreny i Jasienia, łączące bliskość miejskich atrakcji z terenami rekreacyjnymi. Miejsce, w którym połączysz chwile dla siebie z czasem dla swoich bliskich. Sześć 4- i 5-piętrowych budynków, zaprojektowanych przez pracownia B1 Architekci, zapewni możliwości wyboru zgodne z indywidualnymi potrzebami i preferencjami. Od mieszkań dwupokojowych po czteropokojowe. Od parterów z prywatnymi ogródkami po najwyższe piętra z przeszklonymi balkonami. Ofertę osiedla LINEA uzupełniają komfortowe domy w zabudowie szeregowej. Każdy z własnym ogródkiem i garażem na jeden lub dwa samochody.
Dostępne mieszkania w tej inwestycji
| Nazwa | Rzut | Pokoje | Powierzchnia | Piętro | Cena | Status |