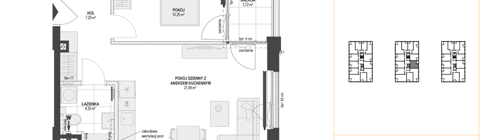
Nowe mieszkanie na sprzedaż 2 pokoje Gdańsk Młyniska, 43,80 m2, 3 piętro - nr G.90
Oferta sprzedaży od Euro Styl S.A.
Gdańsk, Młyniska, ul. ks. Jerzego Popiełuszki (1,1km od centrum Gdańska)

Główne cechy mieszkania
Ważne informacje
Mieszkanie 2 pokojowe
Dodatkowe informacje
Udogodnienia

Plac zabaw

Patio / Dziedziniec

Usługi w budynku

Klimatyzacja

Rowerownia
Przyroda

Rzeka

Park
Inwestycja
DOKI etap II (bud. G)
pomorskie, Gdańsk, Młyniska
DOKI to inwestycja mixed-use z cześcią mieszkalną i hotelowo-gastronomiczną. W ofercie sprzedaży w nowym etapie jest dostępnych ponad 220 mieszkań budynku G, w tym wyjątkowe apartamenty z tarasami na najwyższych piętrach.
Dostępne mieszkania w tej inwestycji
| Nazwa | Rzut | Pokoje | Powierzchnia | Piętro | Cena | Status |