Nowe mieszkanie na sprzedaż 4 pokoje Gdańsk Zaspa-Rozstaje, 100,92 m2, 2 piętro - nr A.2M09
Oferta sprzedaży od ROBYG
Gdańsk, Zaspa-Rozstaje, ul. Leszczyńskich 2 (5,2km od centrum Gdańska)

Główne cechy mieszkania
Ważne informacje
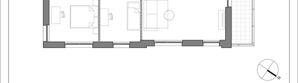
Mieszkanie 4 pokojowe
Dodatkowe informacje
Udogodnienia

Plac zabaw

Patio / Dziedziniec

Sala fitness

Inteligentny dom
Przyroda

Park
Inwestycja
Leszczyńskich 2
pomorskie, Gdańsk, Zaspa-Rozstaje
W środku Gdańska, na granicy Parku Millenium Gdańska, w dzielnicy Zaspa-Rozstaje, powstaje unikalna inwestycja Leszczyńskich 2. Unikalna ze względu na wyjątkową lokalizację, wysoki standard wykonania oraz niepowtarzalny widok na zieleń, mimo położenia osiedla tak blisko centrum miasta. Inwestycja składa się z 3 ekskluzywnych kameralnych pięciopiętrowych budynków, gdzie na przyszłych mieszkańców czeka w sumie 135 apartamentów z dużymi tarasami, ogródkami lub balkonami. Do ich dyspozycji przeznaczono dwupiętrowe klimatyzowane lobby, mogą się również cieszyć takimi udogodnieniami jak prywatna strefa fitness czy zielone patio z przestrzenią do relaksu. Leszczyńskich 2 to synonim oazy luksusu. Klimat miejscu nadają klasyczne materiały użyte w nieoczywisty sposób, intymne oświetlenie w częściach wspólnych oraz eleganckie dodatki. Inspiracją kolorystyczną były krzewy leszczyny, które zwiastując wiosnę zakwitają jasnymi kolorami, a następnie jesienią przybierają złoto-brązowe barwy. To jedyne takie połączenie komfortu i prywatności w tętniącym życiem mieście Gdańsk.
Dostępne mieszkania w tej inwestycji
| Nazwa | Rzut | Pokoje | Powierzchnia | Piętro | Cena | Status |