Nowe mieszkanie na sprzedaż 3 pokoje Gdańsk Chełm, 59,01 m2, parter - nr A.1.5
Oferta sprzedaży od DOMESTA Sp. z o.o.
Gdańsk, Chełm, ul. Ptasia (2,9km od centrum Gdańska)

Główne cechy mieszkania
Opis nieruchomości o powierzchni 59,01 m2
Mieszkanie w inwestycji: #NaSwoim2
To mieszkanie będzie świetnym wyborem dla osób, które szukają przemyślanego układu i wygodnej przestrzeni. Dzięki dwustronnej ekspozycji możesz liczyć na chłodne, komfortowe sypialnie z wyjściem do ogrodu oraz słoneczny salon z aneksem i własnym ogródkiem , który stanie się sercem codziennego życia. Do tego dwa ogrody o łącznej powierzchni niemal 40 m² – idealne na popołudniowy relaks, warzywnik albo mini plac zabaw.
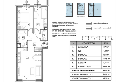
Układ funkcjonalny:
przedpokój: 7,71 m²
WC: 1,82 m²
sypialnia 1: 9,64 m²
sypialnia 2: 11,78 m²
łazienka: 4,73 m²
salon z aneksem: 23,33 m²
ogród 1: 21,59 m²
ogród 2: 18,06 m²
W #NaSwoim2 przy ul. Ptasiej 22 na gdańskim Chełmie mieszkasz blisko wszystkiego, co potrzebne na co dzień. W promieniu kilku minut są szkoły (SP 8, SP 47), przedszkola publiczne i prywatne, sklepy, supermarkety i Pasaż Chełmski. Dojazd do Śródmieścia tramwajem lub autobusem zajmuje około 15–20 minut. Okolica sprzyja aktywnemu wypoczynkowi – w pobliżu są zielone jary, place zabaw, ścieżki spacerowe i tereny idealne do rekreacji.
Inwestycja to pojedynczy budynek, który ma cztery kondygnacje (niska zabudowa) i mieści 50 mieszkań o metrażach od 41,92 do 84,19 m² . Na piętrze w swojej klatce będziesz mieć tylko 4 sąsiadów. W budynku znajdą się cichobieżne windy , garaż podziemny , komórki lokatorskie , rowerownia oraz naziemne miejsca parkingowe. Rozwiązania mają na celu komfort i funkcjonalność codziennego życia mieszkańców.
Mieszkania w tej inwestycji oddajemy w standardzie deweloperskim , który obejmuje:
ściany i sufity szpachlowane oraz malowane na biało
trzyszybowe okna
parapety z konglomeratu
ściany działowe z bloczków gipsowych
drzwi antywłamaniowe
zamontowane gniazdka i włączniki
Odbiór mieszkania planowany jest na 17 grudnia 2026 r.
100% inwestycji Domesta zostało dotychczas oddanych w terminie.
Zainteresowało Cię to mieszkanie?
Zadzwoń lub napisz – odpowiemy na pytania i pomożemy w rezerwacji.
Ważne informacje
Mieszkanie 3 pokojowe
Dodatkowe informacje
Udogodnienia

Winda

Rowerownia
Inwestycja
#NaSwoim2
pomorskie, Gdańsk, Chełm
#NaSwoim2 – kameralna inwestycja na zielonym Chełmie Po sukcesie pierwszego etapu osiedla #NaSwoim, Domesta rusza z realizacją kontynuacji projektu – #NaSwoim2, przy ul. Ptasiej w Gdańsku. Inwestycja powstaje w południowej części dzielnicy Chełm, w spokojnym otoczeniu niskiej zabudowy i terenów zielonych, z szybkim dojazdem do Śródmieścia (ok. 3 km). W ramach inwestycji zaplanowano jeden czteropiętrowy budynek z windą, w którym znajdzie się 50 mieszkań o powierzchniach od 41,92 do 84,19 m². W ofercie dostępne są lokale 2-, 3- i 4-pokojowe, przystosowane zarówno do potrzeb singli, jak i rodzin. Każde mieszkanie będzie posiadać balkon, loggię lub ogródek – w zależności od kondygnacji. Udogodnienia dla mieszkańców: – hala garażowa oraz naziemne miejsca postojowe, – komórki lokatorskie, – rowerownia, – cichobieżne windy, – zewnętrzna strefa rekreacji. Osiedle powstaje w formule jednoetapowej. Kameralna skala zabudowy i niska intensywność ruchu samochodowego to atuty dla osób szukających spokojnego miejsca do życia, blisko miasta. Lokalizacja i otoczenie #NaSwoim2 powstaje w rejonie skrzyżowania ulic Cieszyńskiego i Małomiejskiej – w miejscu dobrze skomunikowanym z resztą Gdańska. W pobliżu znajdują się przystanki autobusowe i tramwajowe, dzięki którym łatwo dostać się do centrum oraz dzielnic południowych. W zasięgu krótkiego spaceru dostępne są sklepy spożywcze, apteki, szkoły, przedszkola, żłobki, przychodnie, punkty usługowe i siłownie. Mieszkańcy mają również łatwy dostęp do zielonych terenów rekreacyjnych – Jar Wilanowski, powstający Jar Sikorskiego, Park Oruński i zbiornik retencyjny Augustowska to idealne miejsca na spacer, bieganie czy odpoczynek z dziećmi. Lokalizacja łączy wygodę miejskiego życia z komfortem przebywania blisko przyrody. Pewność odbioru i oszczędność na starcie Jak każda inwestycja Domesta, #NaSwoim2 objęta jest programem Gwarancja Plus, a dzięki naszej rzetelności 100% realizowanych inwestycji zostało oddanych w terminie. Mieszkania przekazujemy w podwyższonym standardzie deweloperskim, który obejmuje m.in. gładzie, malowanie na biało, ściany z bloczków gipsowych, parapety z konglomeratu, trójszybowe okna, drzwi antywłamaniowe oraz gotową instalację elektryczną z osprzętem. To realna oszczędność na wykończeniu i szybszy moment przeprowadzki do nowego lokum.
Dostępne mieszkania w tej inwestycji
| Nazwa | Rzut | Pokoje | Powierzchnia | Piętro | Cena | Status |