Nowe mieszkanie na sprzedaż 2 pokoje Gdańsk Piecki-Migowo, 41,30 m2, 3 piętro - nr B.4.5
Oferta sprzedaży od DOMESTA Sp. z o.o.
Gdańsk, Piecki-Migowo, ul. Rakoczego 1 (4,8km od centrum Gdańska)

Główne cechy mieszkania
Opis nieruchomości o powierzchni 41,30 m2
Mieszkanie w inwestycji: GreenLine
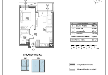
Dwupokojowe mieszkanie o powierzchni 41,30 m² na trzecim piętrze to funkcjonalna przestrzeń z jasnym salonem i loggią od strony wschodniej. Salon z aneksem 19,74 m² ma duże witrynowe okno z wyjściem na loggię 4,10 m² , która stanowi przyjemne miejsce na poranną kawę lub odpoczynek po pracy. Sypialnia 12,03 m² jest ustawna i mieści szerokie łóżko oraz szafę. W przedpokoju 4,96 m² przewidziano wnękę pod zabudowę, a łazienka 4,57 m² pozwala na wygodną aranżację z wanną i pralką.
Rozkład:
Salon z aneksem: 19,74 m²
Sypialnia: 12,03 m²
Przedpokój: 4,96 m²
Łazienka: 4,57 m²
Powierzchnia mieszkania: 41,30 m²
Powierzchnia loggii: 4,10 m²
GreenLine to dziesięciopiętrowy apartamentowiec przy ul. Rakoczego w Matemblewie – zielonej i prestiżowej części Gdańska. Lokalizacja zapewnia doskonałą komunikację miejską – stację PKM Brętowo , tramwaje i sześć linii autobusowych – co gwarantuje szybki dojazd do Wrzeszcza, centrum i Oliwy . W sąsiedztwie znajdują się szkoły, przedszkola, sklepy, apteki i przychodnie . W budynku zaplanowano strefy rekreacyjne : siłownię, salę pilates z reformerami, mindfulness, coworking i bawialnię dla dzieci. GreenLine wyróżnia zielona ściana w częściach wspólnych oraz otoczenie pełne zieleni – wzgórza morenowe i Trójmiejski Park Krajobrazowy tworzą idealne warunki do życia w harmonii z naturą.
Podwyższony standard deweloperski w Domesta obejmuje:
ściany i sufity szpachlowane i malowane dwukrotnie na biało
trzyszybowe okna
parapety z konglomeratu mineralnego
ściany działowe z bloczków gipsowych
solidne drzwi o klasie antywłamaniowej
wysokiej jakości gniazda i włączniki
Termin odbioru: 15.12.2027 (100% inwestycji Domesta oddanych w terminie).
Mieszkanie z loggią i wschodnią ekspozycją to idealna propozycja dla osób, które cenią poranne słońce i wygodny układ wnętrz.
Więcej informacji: strona dewelopera:
Ważne informacje
Mieszkanie 2 pokojowe
Dodatkowe informacje
Udogodnienia

Rowerownia

Plac zabaw

Sala fitness

Pomieszczenie rekreacyjne

Winda
Przyroda

Rezerwat przyrody

Las

Park
Inwestycja
GreenLine
pomorskie, Gdańsk, Piecki-Migowo
GreenLine - Mieszkania Gdańsk GreenLine to dziesięciopiętrowy nowoczesny apartamentowiec przy ul. Rakoczego w Matemblewie, doskonale skomunikowany dzięki tramwajom, autobusom i stacji PKM. W sąsiedztwie znajdują się szkoły, przedszkola, przychodnie, sklepy i punkty usługowe, co zapewnia codzienną wygodę. Budynek wyróżnia elegancka, minimalistyczna forma oraz spektakularny wewnętrzny ogród wertykalny biegnący przez całą przestrzeń komunikacyjną – od parteru aż po najwyższe piętro. Przemyślane układy apartamentów, loggie i duże przeszklenia łączą światło, przestrzeń i komfort z widokami na miejską panoramę zatopioną w zalesionych wzgórzach morenowych. Mieszkańcy GreenLine będą mieli do dyspozycji siłownię, strefę mindfulness, przestrzeń do coworkingu, wspólnego spędzania czasu oraz salę do pilatesu na reformerach. Dla najmłodszych przygotowano bawialnię oraz pełen bodźców ogród sensoryczny otaczający budynek. GreenLine - apartamentowiec w otoczeniu zielonych wzgórz GreenLine to dziesięciopiętrowy apartamentowiec o minimalistycznej, eleganckiej bryle z charakterystycznymi diagonalnymi płaszczyznami elewacji, płaskim dachem i nowoczesnymi balkonami. Dwie kondygnacje podziemne mieszczą hale garażowe z komórkami lokatorskimi oraz rowerownię, która ułatwia codzienne korzystanie z jednośladów. Parter otwiera reprezentacyjna strefa wejściowa z żywym, zielonym ogrodem wertykalnym. Ten poziom niemal w całości przeznaczono na przestrzeń rekreacyjną – z siłownią, strefą mindfulness, coworkingiem, bawialnią i miejscem integracji mieszkańców. Na wyższych kondygnacjach zaprojektowano apartamenty 2-, 3- i 4-pokojowe z przestronnymi loggiami i dużymi przeszkleniami, z których rozciąga się widok na zielone wzgórza morenowe i malowniczo wkomponowaną zabudowę Matemblewa. Wyjątkowo zielone wnętrze Wnętrza GreenLine, zaprojektowane przez studio MS15, powstały w duchu mindfulness – tak, by budowały poczucie spokoju i harmonii. Budynek został podzielony na pięć dwupoziomowych stref o półotwartym, antresolowym charakterze, których centralnym motywem jest ogród wertykalny biegnący przez wszystkie kondygnacje. Materiały nawiązujące do natury, takie jak drewno i ceramika, pojawiają się w holach z wejściami do mieszkań, nadając im ciepły, elegancki charakter. Reprezentacyjne lobby z roślinnymi akcentami i nastrojowym oświetleniem tworzy atmosferę powitania, a przestrzenie wspólne – od strefy fitness po strefę relaksu – sprzyjają równowadze ciała i umysłu. GreenLine łączy funkcjonalność z designem, który wspiera dobre samopoczucie mieszkańców. Przestrzeń sąsiedzka i coworking Dorośli i nastoletni mieszkańcy GreenLine znajdą dla siebie przestrzeń do budowania relacji podczas wspólnej pracy, nauki i rozrywki. Na parterze wydzielono dwie główne strefy – coworkingową, ze stołami i infrastrukturą do telekonferencji, spotkań biznesowych, pracy zespołowej i nauki, oraz towarzyską, z sofami, sprzętem audio-video, stołem bilardowym i kącikiem kawowym. To idealne miejsce do wspólnego kibicowania, seansów filmowych i sąsiedzkich spotkań. Siłownia i strefa mindfullness Strefa fitness została zaprojektowana z myślą o równowadze ciała i umysłu. Obejmuje nowoczesną siłownię, przestrzeń do jogi i medytacji oraz salę pilatesu wyposażoną w reformery – urządzenia ze sprężynami i prowadnicami, które pozwalają na precyzyjny, bezpieczny trening całego ciała. Ćwiczenia na reformerze poprawiają postawę, wzmacniają mięśnie głębokie i sprzyjają elastyczności, łącząc efektywność z relaksem. To miejsce, w którym aktywność staje się przyjemnym rytuałem. Zielona neuroarchitektura Teren wokół budynku zaprojektowano w nurcie neuroarchitektury – z uwzględnieniem różnych potrzeb poznawczych i świadomością wpływu otoczenia na dobrostan psychiczny mieszkańców. Zagospodarowanie i mała architektura budują zarówno przestrzenie towarzyskie, jak i miejsca kontemplacji. Roślinność tworzy ogród sensoryczny ze strefami smaku, zapachu, dźwięku i dotyku, które sprzyjają praktyce uważności poprzez koncentrację na realnych doznaniach z otoczenia. Wyobraźnia i aktywność Rekreacja dla najmłodszych mieszkańców GreenLine została zaplanowana tak, by rozwijała wyobraźnię i zapewniała bezpieczną przestrzeń do zabawy. W budynku znajdzie się kolorowa sala zabaw w formie drzewa, która łączy motyw natury z radością i kreatywnością dzieci. Na zewnątrz powstanie bujna, wielowarstwowa zieleń inspirowana ogrodami zen. Cały teren rekreacyjny stanie się częścią labiryntu sensorycznego – ścieżki prowadzącej przez strefy zmysłów: od smaku i zapachu po dźwięk i dotyk. Dzięki temu najmłodsi będą dorastać w otoczeniu przyrody, która sprzyja aktywności, ciekawości świata i budowaniu relacji z rówieśnikami. Podwyższony standard wykończenia Wszystkie mieszkania z naszej oferty wyróżniają się podwyższonym standardem wykończenia. Ściany i sufity są wyszpachlowane oraz dwukrotnie pomalowane na biało, co znacząco skraca czas potrzebny na dalsze prace wykończeniowe. Ściany wykonano z bloczków gipsowych, zastosowano trzyszybowe okna, zamontowano już parapety oraz wysokiej jakości gniazda i włączniki. Drzwi wejściowe posiadają klasę antywłamaniową, zapewniając dodatkowe bezpieczeństwo
Dostępne mieszkania w tej inwestycji
| Nazwa | Rzut | Pokoje | Powierzchnia | Piętro | Cena | Status |