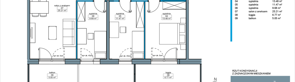
Nowe mieszkanie na sprzedaż 4 pokoje Gdańsk Piecki-Migowo, 82,32 m2, 3 piętro - nr A.4.7
Oferta sprzedaży od YIT Development Sp. z o.o.
Gdańsk, Piecki-Migowo, ul. Rakoczego 17 (4km od centrum Gdańska)

Główne cechy mieszkania
Ważne informacje
Mieszkanie 4 pokojowe
Dodatkowe informacje
Udogodnienia

Usługi w budynku

Rowerownia

Winda
Przyroda

Park
Inwestycja
Rakoczego 17
pomorskie, Gdańsk, Piecki-Migowo
Rakoczego 17 to inwestycja największego fińskiego dewelopera – YIT. W ramach tej jednoetapowej inwestycji, powstaną 154 komfortowe mieszkania. Doskonała lokalizacja na gdańskiej Morenie oznacza świetną komunikację z pozostałymi częściami miasta, a dzięki rozbudowanej, istniejącej już infrastrukturze, z pewnością okaże się wygodnym miejscem do życia. W YIT stawiamy na proekologiczne rozwiązania: panele fotowoltaiczne na dachu, oświetlenie LED na korytarzach czy gniazda do ładowania aut elektrycznych. Doceniamy także osoby, które wybierają przyjazne dla środowiska środki transportu – dla ich komfortu zaplanowaliśmy stojaki rowerowe na terenie inwestycji. W północnej części działki powstanie ogród deszczowy, retencjonujący wodę opadową. Przestrzeń zostanie wzbogacona o zielone patio i zielone, nieużytkowe dachy.
Dostępne mieszkania w tej inwestycji
| Nazwa | Rzut | Pokoje | Powierzchnia | Piętro | Cena | Status |