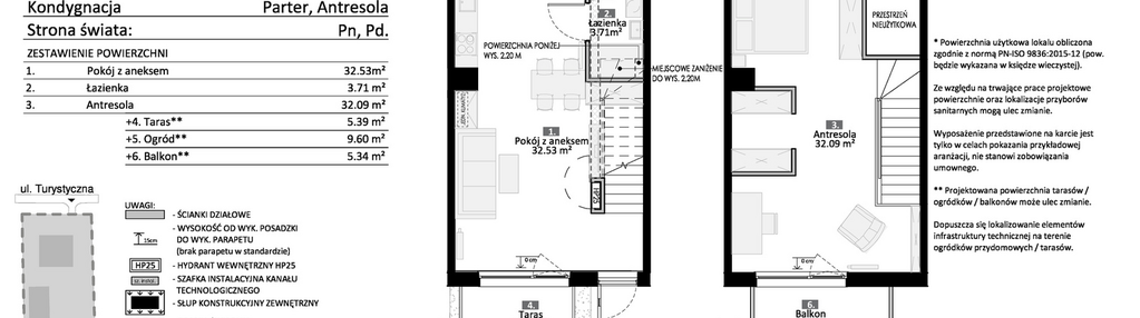
Nowe mieszkanie na sprzedaż 2 pokoje Gdańsk Wyspa Sobieszewska, 68,33 m2, parter - nr 5.03
Oferta sprzedaży od Platforma Mieszkaniowa
Gdańsk, Wyspa Sobieszewska, ul. Turystyczna 90 (14km od centrum Gdańska)

Główne cechy mieszkania
Opis nieruchomości o powierzchni 68,33 m2
Mieszkanie w inwestycji: Pino Resort
Pino Resort, Wyspa Sobieszewska
1 km od plaży | las sosnowy | basen | boisko | balkon lub ogród | nowoczesny design
UDOGODNIENIA
- Kameralna zabudowa – tylko 61 apartamentów
- Zaledwie 1 km od nadbałtyckiej plaży
- Sąsiedztwo lasu sosnowego i łąk nad kanałem Młynówka
- Zewnętrzny basen i plac zabaw
- Boisko do siatkówki i strefa rekreacji
- Nowoczesny design części wspólnych
- Blisko rezerwatu przyrody Ptasi Raj
Pino Resort to kameralna inwestycja w jednym z najmodniejszych dziś rejonów Gdańska - na Wyspie Sobieszewskiej, otoczona naturą i zaprojektowana z myślą o relaksie. Bezpośrednie sąsiedztwo inwestycji to nadmorski las sosnowy oraz tereny łąkowe rozciągające się nad kanałem Młynówka. W pobliżu znajduje się rezerwat przyrody Ptasi Raj, gdzie można podziwiać ponad 300 gatunków ptaków, w tym rzadkich i chronionych.
Na terenie osiedla znajduje się basen zewnętrzny, boisko do siatkówki i przestrzeń rekreacyjna, które dopełniają atmosferę wypoczynku. To idealne miejsce zarówno do życia, jak i inwestycji w wynajem.
Apartamenty gotowe do odbioru w stanie deweloperskim lub wykończone. Również możesz skorzystać z usług działu aranżacji wnętrz Dekpol Deweloper, który pomoże stworzyć przestrzeń dopasowaną do Twoich potrzeb i gustu. Wypełnij formularz kontaktowy aby skontaktować się z naszymi doradcami, dowiedzieć się więcej o ofercie i zarezerwować wybrany apartament.
Ważne informacje
Mieszkanie 2 pokojowe
Dodatkowe informacje
Udogodnienia

Basen
Przyroda

Morze
Inwestycja
Pino Resort
pomorskie, Gdańsk, Wyspa Sobieszewska
Apartamenty nad morzem, idealne do życia lub zainwestowania W pierwszym etapie inwestycji powstanie 61 luksusowych apartamentów, ulokowanych w niskich, kameralnych budynkach. Jedno i dwupokojowe lokale liczyć będą od 35 mkw. do 69 mkw., a część z nich zostanie wzbogacona o antresolę, która uatrakcyjni przestrzeń. Każdy apartament posiadać będzie balkon lub ogródek, zapewniając idealne miejsce do relaksu. Na terenie Pino Resort znajdą się zarówno miejsca parkingowe jak i stojaki na rowery, aby zapewnić najwyższy komfort naszym mieszkańcom.
Dostępne mieszkania w tej inwestycji
| Nazwa | Rzut | Pokoje | Powierzchnia | Piętro | Cena | Status |