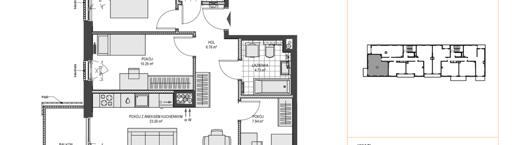
Nowe mieszkanie na sprzedaż 4 pokoje Gdańsk Brzeźno, 64,60 m2, 5 piętro - nr C52
Oferta sprzedaży od Euro Styl S.A.
Gdańsk, Brzeźno, ul. Uczniowska (5,1km od centrum Gdańska)

Główne cechy mieszkania
Ważne informacje
Mieszkanie 4 pokojowe
Dodatkowe informacje
Udogodnienia

Winda

Rowerownia

Plac zabaw

Usługi w budynku
Przyroda

Park

Morze
Inwestycja
Przystań Brzeźno etap 1.2
pomorskie, Gdańsk, Brzeźno
Przystań Brzeźno Przystań Brzeźno to nowa inwestycja Euro Stylu w Gdańsku Brzeźnie. W nadmorskiej okolicy, w pobliżu parków i zieleni, a zarazem z dobrym dojazdem do centrum Gdańska i dostępem do miejskich atrakcji. Osiedle utworzą w sumie cztery 6-kondygnacyjne budynki. W pierwszym budynku powstającym w ramach II etapu inwestycji powstanie 46 mieszkań o różnych metrażach (39-74). Funkcjonalne układy lokali pozwolą efektywnie wykorzystać każdy metr powierzchni, niezależnie od tego, czy jest to duże czy mniejsze mieszkanie. Mieszkańcy mogą odłożyć na chwilę codzienne obowiązki, by odpocząć na balkonie lub loggii. Wszystkie mieszkania na parterze mają natomiast ogródki, które stanowią dodatkową przestrzeń do wypoczynku. W parterze budynku powstaną lokale usługowe. Inwestycja Przystań Brzeźno znajduje przy ul. Uczniowskiej (7,4 km od centrum Gdańska), jest realizowana przez Euro Styl S.A. Inwestycja obecnie jest w trakcie budowy z planowanym na IV kwartał 2027 terminem oddania do użytkowania. Dla przyszłych mieszkańców Osiedle Przystań Brzeźno deweloper przewidział: • miejsca postojowe podziemne • miejsca postojowe naziemne W inwestycji znajdują się komórki lokatorskie. DOSKONALE SKOMUNIKOWANE Bezpośrednie sąsiedztwo przestanku autobusowego oraz 500 m do przystanku tramwajowego. Szybki dojazd do tras S6, S7 oraz autostrady A1 przez Drogę Zieloną oraz tunel pod Martwą Wisłą. Mieszkańcy mogą cieszyć się dostępem do niezbędnych usług. W pobliżu znajdują się szkoły i przedszkole, a także sklepy czy restauracje. Dobry dojazd do innych dzielnic Gdańska, a także Sopotu czy Gdyni daje możliwość skorzystania z typowo miejskich atrakcji – pójścia do kina, teatru czy na koncert. ATRAKCJE NA OSIEDLU Funkcjonalnie zaprojektowane części wspólne będą zachęcać do spędzania czasu na świeżym powietrzu. Do Osiedla będzie przylegał park z placem zabaw i małą infrastrukturą. Powstanie wewnętrzna strefa rekreacji oraz patio z pergolą i ławkami, tzw. Pocket-park. EKOLOGIA Na osiedlu zaplanowano szeroki wachlarz ekologicznych rozwiązań, panele fotowoltaiczne, ogrody deszczowe oraz energooszczędne oświetlenie LED. Mieszkańcy będą mogli korzystać z rozwiniętej infrastruktury rowerowej – rowerowni w budynkach i stojaków rowerowych na zewnątrz. Wybrane stanowiska w halach wyposażone będą w gniazda elektryczne. ARCHITEKTURA WNĘTRZA Wnętrza utrzymane są w stylu podkreślającym ponadczasową elegancję. Zostały zaprojektowane z myślą o codziennym komforcie mieszkańców: • części wspólne utrzymane są w jednolitej estetyce – z nawiązaniem do natury i nowoczesnego minimalizmu kolorystyka czerpie inspiracje z zachodów słońca, piasku, skał i drewna – tworząc spójną, ciepłą i kojącą atmosferę, • kolorem przewodnim wnętrz jest ochra czerwona, • ściany w korytarzach będą ozdobione grafikami, prezentującymi geometryczne kształty, • każdy budynek zostanie wyposażony w cichobieżną windę we wiatrołapach znajdą się półki sąsiedzkie do wymiany książek. LOKALIZACJA INWESTYCJI Gdańsk to miasto położone na północy Polski w bezpośrednim sąsiedztwie Morza Bałtyckiego (Zatoka Gdańska). Ok 100 m. dzieli granice Gdańska od Pruszcza Gdańskiego, 30 km od Elbląga, 7 km od Sopotu i 12 km od Gdyni. Panorama Gdańska to zarówno przedwojenne zabytki jak i kamienice odbudowane po wojnie, a także bloki i domki jednorodzinne. Gdańsk składa się z kilkudziesięciu dzielnic, w tym Aniołki, Oliwa, Przymorze Wielkie, Strzyża, Śródmieście, Ujeścisko-Łostowice i Wyspa Sobieszewska. To ważny ośrodek naukowy z Uniwersytetem Gdańskim, Politechniką Gdańską czy Gdańskim Uniwersytetem Medycznym na czele. Za kulturę odpowiada m.in. Filharmonia Bałtycka, Opera Bałtycka, Teatr Wybrzeże, Gdański Teatr Szekspirowski oraz Muzeum Narodowe. Ofertę kulturalną uzupełniają zabytki od średniowiecznych po te najnowsze (Stocznia Gdańska). EDUKACJA Czy w pobliżu inwestycji Przystani Brzeźno znajdują się szkoły/przedszkola? Mieszkańcy mogą korzystać z bogatej oferty edukacyjnej. W najbliższej okolicy inwestycji znajduje się szkoły, przedszkola i żłobki. Opieka medyczna Dużym atutem inwestycji Przystań Brzeźno jest bliskość ośrodków zdrowotnych. Dostęp do opieki medycznej zapewnią położone w pobliżu: gabinet lekarski / przychodnia / szpital. Sklepy i usługi Jak daleko jest do najbliższego sklepu? Na infrastrukturę handlowo-usługową inwestycji Przystań Brzeźno składa się wiele punktów. Nieopodal, w odległości 200 m znajdują się sklepy oraz kompleks AmberExpo. SPORT Bliskość terenów rekreacyjnych oraz obiektów sportowych to mocna strona tej lokalizacji. W najbliższej okolicy inwestycji znajdują się liczne trasy spacerowe i ścieżki rowerowe, stadion Polsat Plus Arena, park linowy Port Brzeźno oraz miasteczko sportowe na plaży. Lokalizacja inwestycji Brzeźno to dzielnica Gdańska w kształcie prostokąta, ograniczona od północy plażą Gdańsk Brzeźno, od zachodu Parkiem im. Ronalda Reagana, od południa ul. Czarny Dwór a od wschodu torami kolejowymi i ul. Letnicką. Ma powierzchnię 2,74 km kw i jest zamieszkana przez 13 457 mieszkańców. To niezwykłe miejsce nie tylko z uwagi na bliskość kąpieliska i mola ale też miejsc historycznych – zaledwie kilkadziesiąt metrów dalej zaczyna się Westerplatte. W odległości mniejszej, niż 500 m od Brzeźna znajduje się szpital COPERNICUS, Latarnia Morska, Stadion PGE Arena czy Park im. Jana Pawła II. Na terenie samej dzielnicy znajduje się m.in. Park Brzeźnieński , supermarkety Lidl i Biedronka i kilka nadmorskich restauracji a zabudowa mieszkalna składa się głównie z domków jednorodzinnych. Brzeźno okalają dzielnice Nowy Port, Letnica, Wrzeszcz Dolny i Zaspa Rozstaje. Komunikacja Jak wygląda komunikacja w okolicy inwestycji Przystań Brzeźno? Po dzielnicy kursują autobusy dzienne jak i nocne. Najbliższe stacje SKM i PKP znajdują się w odległości ok. 2 km od granicy dzielnicy – Gdańsk Zaspa i Gdańsk Wrzeszcz. Można z nich dojechać do Gdańska, Gdyni i Sopotu a także pozostałych miast w województwie. W odległości ok.50 m od Brzeźna znajduje się stacja promu do szwedzkiego Nynashamn. Lotnisko im. Lecha Wałęsy znajduje się w odległości ok. 15 km. Przyszli mieszkańcy inwestycji Przystań Brzeźno mogą korzystać z rozbudowanej sieci połączeń komunikacyjnych. W odległości 100 metrów od inwestycji Przystań Brzeźno znajduje się najbliższy punkt komunikacyjny - Nowa Gdańska 01. Edukacja Czy w pobliżu inwestycji Przystań Brzeźno znajdują się szkoły/przedszkola? Mieszkańcy mogą korzystać z bogatej oferty edukacyjnej. W najbliższej okolicy inwestycji Przystań Brzeźno znajduje się 14 placówek edukacyjnych. Najbliżej położone to: Smart Kids 2 - Nowa Letnica w odległości 600 m. Opieka medyczna Dużym atutem inwestycji Przystań Brzeźno jest bliskość ośrodków zdrowotnych. Dostęp do opieki medycznej zapewnią położone w pobliżu: Podolog Letnica. Magdalena Kosecka w odległości 500 m. Sklepy i usługi Jak daleko jest do najbliższego sklepu? Na infrastrukturę handlowo-usługową inwestycji Przystań Brzeźno składa się wiele punktów. Nieopodal, w odległości 500 m znajduje się Żabka, w odległości 500 m znajduje się siłownia, w odległości 600 m znajduje się Biedronka. Sport Bliskość terenów rekreacyjnych oraz obiektów sportowych to mocna strona tej lokalizacji. W najbliższej okolicy inwestycji Przystań Brzeźno w odległości 400 m znajduje się boisko / kort, w odległości 600 m znajduje się siłownia na świeżym powietrzu.
Dostępne mieszkania w tej inwestycji
| Nazwa | Rzut | Pokoje | Powierzchnia | Piętro | Cena | Status |