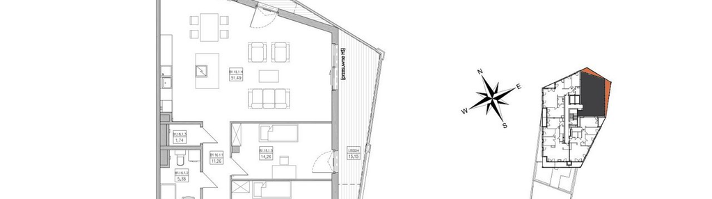
Nowe mieszkanie na sprzedaż 4 pokoje Gdynia Redłowo, 122,62 m2, 15 piętro - nr B1.16.1
Oferta sprzedaży od Platforma Mieszkaniowa
Gdynia, Redłowo, al. Zwycięstwa (2,9km od centrum Gdyni)

Główne cechy mieszkania
Ważne informacje
Mieszkanie 4 pokojowe
Dodatkowe informacje
Udogodnienia

Plac zabaw

Winda

Rowerownia

Patio / Dziedziniec

Wózkarnia
Przyroda

Las

Morze

Rezerwat przyrody

Park
Inwestycja
Dostępne mieszkania w tej inwestycji
| Nazwa | Rzut | Pokoje | Powierzchnia | Piętro | Cena | Status |