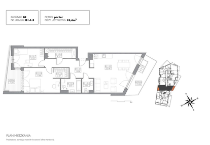
Nowe mieszkanie na sprzedaż 3 pokoje Gdynia Redłowo, 92,75 m2, parter - nr B1.1.2
Oferta sprzedaży od Platforma Mieszkaniowa
Gdynia, Redłowo, al. Zwycięstwa (2,9km od centrum Gdyni)

Główne cechy mieszkania
Ważne informacje
Mieszkanie 3 pokojowe
Dodatkowe informacje
Udogodnienia

Patio / Dziedziniec

Winda

Rowerownia

Wózkarnia

Plac zabaw
Przyroda

Park

Las

Rezerwat przyrody

Morze
Inwestycja
Dostępne mieszkania w tej inwestycji
| Nazwa | Rzut | Pokoje | Powierzchnia | Piętro | Cena | Status |