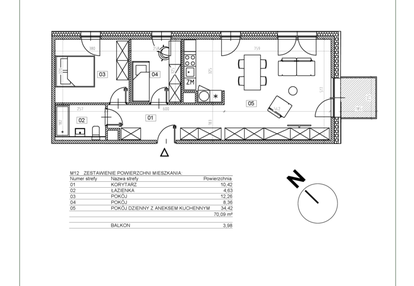
Nowe mieszkanie na sprzedaż 3 pokoje Gliwice, 70,09 m2, 2 piętro - nr J.M12
Oferta sprzedaży od Renner Sp. z o.o.
Gliwice, ul. Daszyńskiego 68 (1,8km od centrum Gliwic)

Główne cechy mieszkania
Ważne informacje
Mieszkanie 3 pokojowe
Inwestycja
Osiedle Glivia Zachodnia
śląskie, Gliwice
To współczesne osiedle położone w bliskim sąsiedztwie centrum miasta, przy ulicy Daszyńskiego 68. Niezwykła koncepcja i architektura, opracowane przez renomowane biuro architektoniczne Medusagroup, oraz funkcjonalny układ mieszkań o różnorodnych metrażach czynią naszą ofertę atrakcyjną dla każdego, kto poszukuje wyjątkowego miejsca do zamieszkania. Zapewniamy komfortowe mieszkania z wszelkimi udogodnieniami. Osiedle Glivia w Gliwicach to nowoczesna inwestycja, która łączy przemyślaną architekturę, wysokiej jakości materiały oraz solidne wykonanie. To miejsce stworzone z myślą o komforcie i wygodzie mieszkańców, oferujące funkcjonalne układy mieszkań oraz atrakcyjną lokalizację.
Dostępne mieszkania w tej inwestycji
| Nazwa | Rzut | Pokoje | Powierzchnia | Piętro | Cena | Status |