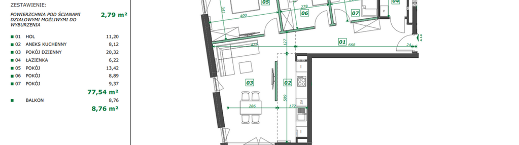
Nowe mieszkanie na sprzedaż 4 pokoje Gliwice, 80,33 m2, 1 piętro - nr A.1.6
Oferta sprzedaży od Pszczyńska 61
Gliwice, ul. Pszczyńska 61 (0,9km od centrum Gliwic)


Główne cechy mieszkania
Ważne informacje
Mieszkanie 4 pokojowe
Dodatkowe informacje
Udogodnienia

Usługi w budynku

Klimatyzacja

Winda
Inwestycja

Apartamenty Pszczyńska
śląskie, Gliwice
Dlaczego warto wybrać Apartamenty Pszczyńska? Apartamenty Pszczyńska to zlokalizowane przy ul Pszczyńskiej w Gliwicach osiedle mieszkaniowe składające się z dwóch eleganckich budynków mieszkalnych połączonych komfortowym garażem podziemnym. Architektura osiedla doskonale wkomponowuje się w otoczenie centrum Gliwic łącząc tradycję z nowoczesnymi i komfortowymi rozwiązaniami technicznymi np., garaż podziemny przewidziany dla wszystkich mieszkań skomunikowane cichobieżnymi windami. Doskonały dojazd do całej aglomeracji śląskiej poprzez bezpośrednie położenie przy ulicy Pszczyńskiej będącej arterią komunikacyjną łączącą Gliwice z DTŚ i autostradami A4/A1 . Niezależnie czy pracujesz, czy jesteś studentem Apartamenty Pszczyńska to świetne miejsce do wypoczynku po ciężkim dniu w pracy czy na uczelni, a jego lokalizacja umożliwia szybkie przemieszczanie się i skraca do minimum czas jaki trzeba poświęcić na dotarcie do pracy czy na uczelnię. Dla maksymalnego komfortu mieszkańców zaplanowaliśmy na naszym osiedlu sklep spożywczy znanej sieci handlowej. Większe zakupy zrobisz w bezpośrednim sąsiedztwie. Apartamenty Pszczyńska to miejsce dla ludzi aktywnych, chcących czerpać z atrakcji Gliwic jak najwięcej radości. .Wszystkie atrakcje począwszy od Rynku, Parku im. Bolesława Chrobrego ,Teatru, Centrum Sportowego Jasna i wielu innych jest dostępne kilkuminutowym spacerem
Dostępne mieszkania w tej inwestycji
Nazwa | Rzut | Pokoje | Powierzchnia | Piętro | Cena | Status |