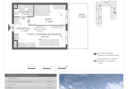
Nowe mieszkanie na sprzedaż 2 pokoje Grajewo, 35,76 m2, parter - nr 83.
Oferta sprzedaży od Rutkowski Development Sp. J.
Grajewo, ul. mjr. Jana Tabortowskiego 6

Główne cechy mieszkania
Ważne informacje
Mieszkanie 2 pokojowe
Dodatkowe informacje
Udogodnienia

Winda
Inwestycja
Osiedle Parkowa etap B
podlaskie, grajewski, Grajewo
W ofercie znajduje się szeroki wybór metraży od około 35 m² do 112 m², co stanowi doskonałą propozycję zarówno dla singli, jak i rodzin z dziećmi. Przestronne balkony, tarasy dachowe i ogródki parterowe, zagwarantują upragnioną przestrzeń do wypoczynku na świeżym powietrzu. Ponadto, w mieszkaniach parterowych zaprojektowane zostały antresole, dzięki którym pomieszczenie staje się jeszcze przestronniejsze i jaśniejsze. Jest to dodatkowa przestrzeń do życia, którą można zaaranżować według własnych potrzeb na np. sypialnię, bawialnię, garderobę, bibliotekę czy biuro – ograniczeniem jest tylko wyobraźnia.
Dostępne mieszkania w tej inwestycji
| Nazwa | Rzut | Pokoje | Powierzchnia | Piętro | Cena | Status |