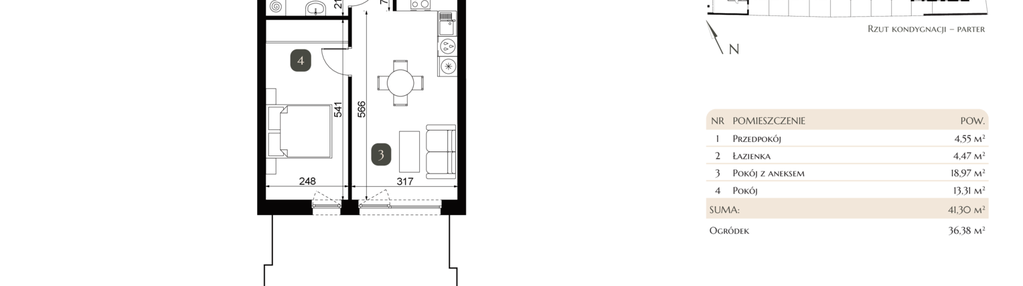
Nowe mieszkanie na sprzedaż 2 pokoje Katowice Zespół Dzielnic Północnych, 41,30 m2, parter - nr B.28
Oferta sprzedaży od Dębowa 45 SPV Sp. z o.o.
Katowice, Dąb, ul. Dębowa 45 (2km od centrum Katowic)

Główne cechy mieszkania
Ważne informacje
Mieszkanie 2 pokojowe
Dodatkowe informacje
Udogodnienia

Winda

Rowerownia

Usługi w budynku

Wózkarnia
Przyroda

Park
Inwestycja
Dębowa 45
śląskie, Katowice, Zespół Dzielnic Północnych, Dąb
Dębowa 45 w Katowicach to znakomicie skomunikowany adres. W pobliżu znajdują się przystanki tramwajowe (linie nr: 6, 11, 19, 23, 25) i autobusowe (linie nr: 110, 0, 50, 193, 6, 7, 7N, 23, 109, 662, 673, 674, 830, 840, 840N, M3, M24), co zapewnia szybki dostęp do różnych części aglomeracji. Niedaleko również do dróg krajowych nr 79 i autostrady A4. Natomiast miłośników jednośladów ucieszy bliskość licznych ścieżek rowerowych. W sąsiedztwie miejskich wygód i Parku Śląskiego Dębowa 45 to idealne miejsce dla osób ceniących zarówno miejskie udogodnienia, jak i sąsiedztwo natury. Jednym z najważniejszych atutów inwestycji jest bliskość Parku Śląskiego. To atrakcyjna przestrzeń wypełniona roślinnością (z zoo, kolejką linową i licznymi ścieżkami spacerowymi), która zapewnia nie tylko relaks na świeżym powietrzu, ale także doskonałe warunki do aktywnego spędzania czasu. W okolicy znajdują się również liczne sklepy, w tym centrum handlowe Silesia City Center, oraz paczkomaty, punkty usługowe i placówki edukacyjne. Wygodne, funkcjonalne i słoneczne mieszkania Dębowa 45 to budynek mieszkalny, który obejmuje 50 komfortowych mieszkań i 9 lokali z ekspozycją na południe, wschód i zachód, co gwarantuje słoneczne wnętrza przez większość dnia. Budynek został zaprojektowany z myślą o wygodzie, łącząc estetyczną architekturę z funkcjonalnymi rozwiązaniami. Funkcjonalne i łatwe w aranżacji wnętrza Mieszkania w inwestycji Dębowa 45 mają powierzchnię od 29 m² do 123 m². W ofercie znajdują się zarówno funkcjonalne lokale dla singli, jak i wnętrza idealne dla młodych par lub rodzin. Dostępne są także apartamenty dwupoziomowe, które zapewniają dodatkową przestrzeń oraz możliwości adaptacyjne. Wszystkie mieszkania wyróżniają się przemyślanym, łatwym w aranżacji układem pomieszczeń.
Dostępne mieszkania w tej inwestycji
| Nazwa | Rzut | Pokoje | Powierzchnia | Piętro | Cena | Status |