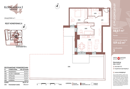
Nowe mieszkanie na sprzedaż 3 pokoje Katowice Zespół Dzielnic Śródmiejskich, 66,67 m2, parter - nr 3
Oferta sprzedaży od Grupa Matejek
Katowice, Bogucice, ul. Kopalniana 1 (1,3km od centrum Katowic)

Główne cechy mieszkania
Opis nieruchomości o powierzchni 66,67 m2
Mieszkanie w inwestycji: Kopalniana
Elementy wyposażenia pomieszczeń Lokalu mieszkalnego przedstawione na załączonych wizualizacjach mają charakter jedynie informacyjny, wskazujący na przeznaczenie danego pomieszczenia i możliwość jego aranżacji. Lokal mieszkalny sprzedawany jest w stanie deweloperskim.
Ważne informacje
Mieszkanie 3 pokojowe
Dodatkowe informacje
Przyroda

Park
Inwestycja
Kopalniana
śląskie, Katowice, Zespół Dzielnic Śródmiejskich, Bogucice
Inwestycja Kopalniana zlokalizowana w samym sercu Katowic - przy ulicy Kopalnianej 1, to miejsce stworzone z myślą o mieszkańcach pragnących czerpać z miejskiego życia przy bliskim otoczeniu natury. Wyjątkowa, historyczna lokalizacja zapewnia zarówno bliski dostęp do terenów zielonych, jak i w pełni umożliwia korzystanie z miejskich udogodnień. Trwałość i unikatowa estetyka W budynku zaplanowano 59 Apartamentów oraz 4 lokale usługowe o powierzchni od 36 do 218 m². Do dyspozycji mieszkańców będzie 69 miejsc postojowych. Każde z Apartamentów posiadać będzie taras, balkon, loggie lub ogród przydomowy, które zapewnią możliwość relaksu i komfortu. Inwestycja Kopalniana 1 to niezwykłe połączenie nowoczesnej architektury z unikatowym dziedzictwem śląskiej kultury. Projekt powstał we współpracy z renomowanym biurem architektonicznym Wojciecha Wojciechowskiego, które stworzyło nowoczesną formę, oddającą hołd tej wyjątkowej tradycji. Całość wyróżnia się dbałością o detale oraz funkcjonalnością, tworząc przestrzeń sprzyjającą komfortowemu życiu. Kopalniana 1 została zaprojektowana z myślą o tych, którzy cenią bliskość natury i tradycji, jednocześnie pragnąc korzystać z udogodnień centralnej lokalizacji w mieście. Części wspólne Na uwagę zasługują także starannie zaprojektowane części wspólne, dopracowane w każdym detalu. W garażach zastosowano specjalne elementy wizualne inspirowane historią Śląska, które podkreślają dziedzictwo regionu. Oświetlenie w przestrzeniach wspólnych zapewnia nie tylko funkcjonalność, lecz także dodaje wnętrzom elegancji. W trosce o bezpieczeństwo mieszkańców budynek został wyposażony w monitoring, a drzwi wewnętrzne posiadają podwyższoną odporność na włamania. Podczas realizacji inwestycji Kopalniana 1 zadbaliśmy również o ekologiczne rozwiązania, takie jak zieleń ekstensywna na dachu. Ten zabieg nie tylko podnosi walory estetyczne budynku, ale także przyczynia się do poprawy jakości powietrza oraz komfortu termicznego mieszkańców.
Dostępne mieszkania w tej inwestycji
| Nazwa | Rzut | Pokoje | Powierzchnia | Piętro | Cena | Status |