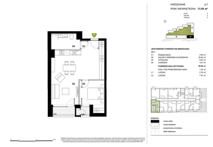
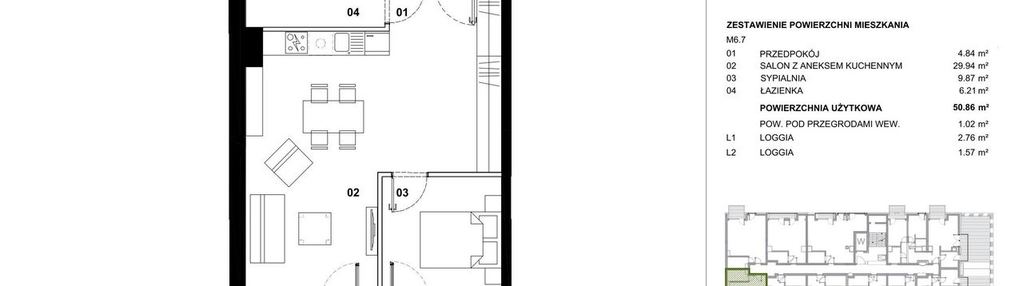
Nowe mieszkanie na sprzedaż 2 pokoje Katowice Zespół Dzielnic Śródmiejskich, 51,88 m2, 6 piętro - nr A.6.7
Oferta sprzedaży od Platforma Mieszkaniowa
Katowice, Śródmieście, ul. Kozielska 11 (1,3km od centrum Katowic)

Główne cechy mieszkania
Ważne informacje
Mieszkanie 2 pokojowe
Dodatkowe informacje
Udogodnienia

Winda

Plac zabaw
Inwestycja
Kozielska Park
śląskie, Katowice, Zespół Dzielnic Śródmiejskich, Śródmieście
Postaw na komfort i wygodę Jeśli szukasz ekskluzywnego mieszkania w centrum, wysokiej klasy budownictwa i wyjątkowego designu, KOZIELSKA PARK jest właśnie dla Ciebie. Swoje miejsce na ziemi znajdą tutaj zarówno rodziny z dziećmi, jak i osoby, które postawiły na swój rozwój zawodowy w Katowicach i szukają mieszkania blisko pracy. Nasza inwestycja łączy w sobie komfort mieszkania w sercu miasta i spokój podmiejskiej zabudowy. Szlachetny dizajn inspirowany architektoniczną tradycją Śląska Ceglana elewacja nawiązująca do charakterystycznej dla Katowic tradycji architektonicznej to jedynie zapowiedź tego, co zobaczysz w środku. Dzięki nowoczesnej i wysmakowanej stylistyce inwestycja idealnie współgra z otoczeniem, zachowując jednocześnie indywidualność. Dosłownie chwila dzieli Cię od ścisłego centrum wydarzeń Bezsprzecznym walorem KOZIELSKA PARK jest lokalizacja. Trudno wyobrazić sobie, że można czerpać z tego co w wielkomiejskim życiu najlepsze, nie rezygnując z komfortu i prywatności.
Dostępne mieszkania w tej inwestycji
| Nazwa | Rzut | Pokoje | Powierzchnia | Piętro | Cena | Status |