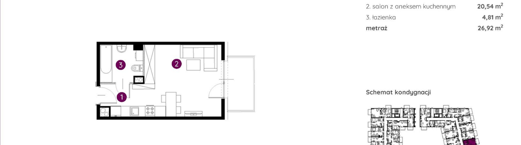
Nowe mieszkanie na sprzedaż 1 pokój Katowice Zespół Dzielnic Śródmiejskich, 26,92 m2, 1 piętro - nr 2.B.1.05
Oferta sprzedaży od Murapol Real Estate
Katowice, Bogucice, ul. Ludwika (1,6km od centrum Katowic)

Główne cechy mieszkania
Ważne informacje
Mieszkanie 1 pokojowe
Dodatkowe informacje
Udogodnienia

Usługi w budynku

Rowerownia

Inteligentny dom

Winda

Plac zabaw

Wózkarnia
Inwestycja
Murapol Nowe Bogucice
śląskie, Katowice, Zespół Dzielnic Śródmiejskich, Bogucice
Bogucice Twoim nowym domem Jeśli Katowice zajmują specjalne miejsce w Twoim życiu i chcesz być częścią intensywnie rozwijającego się centrum miasta, to Murapol Nowe Bogucice są właśnie dla Ciebie. Zaledwie 1,5 km dzielić będzie osiedle od Katowickiej Strefy Kultury – wielkich sal koncertowych, hal widowiskowo-sportowych i kongresowych oraz zielonych przestrzeni plenerowych. Tutaj nie sposób się nudzić. Murapol Nowe Bogucice pozwolą Ci odkrywać miasto z nowej perspektywy. A udogodnienia na terenie osiedla, takie jak siłownia Murapol Gym będą Ci towarzyszyć każdego dnia, podnosząc komfort i zachęcając do aktywności. Tutaj rozwiniesz skrzydła Mieszkanie w Murapol Nowych Bogucicach oferuje wszystko, czego potrzebujesz, by czuć się komfortowo i bezpiecznie. Kawalerki oraz 2-, 3- i 4-pok. mieszkania od 26 do 66 m2. Wygodę zapewnią ponadto dodatkowe powierzchnie plenerowe przynależne do każdego mieszkania – taras z zielonym ogródkiem lub nawet 2 balkony. Pakiet antysmogowy zabezpieczy wnętrza przed zanieczyszczeniami z zewnątrz, a Home Management System pozwoli nowocześnie funkcjonować przy użyciu inteligentnych rozwiązań. A starannie zaprojektowane i wykończone w wysokim standardzie przestrzenie wspólne będą inspirować do codziennego działania. Żyj nurtem Śródmieścia Zaledwie 20-minutowy spacer dzielić będzie mieszkańców osiedla Murapol Nowe Bogucice od Katowickiej Strefy Kultury. To niezwykła przestrzeń stworzona do spędzania wolnego czasu, rozwijania swoich pasji i czerpania z atrakcji kulturalnych. Spodek, Narodowa Orkiestra Symfoniczna Polskiego Radia, Muzeum Śląskie i Międzynarodowe Centrum Kongresowe to najbogatsze centrum kultury na terenie konurbacji górnośląskiej. Korzystaj z udogodnień każdego dnia • Opcja smart home • Pakiet antysmogowy • Otynkowana łazienka i instalacja wod.-kan. poprowadzona podtynkowo • Nawet 2 balkony do mieszkania • Dwustronna ekspozycja w wybranych lokalach • Miejski węzeł cieplny • Jasne wnętrza dzięki wysokim oknom portfenetrowym • Wysoki standard wykończenia części wspólnych • Dodatkowa izolacja termiczno-akustyczna mieszkań (płyta eurothane) • Komórki lokatorskie i boksy garażowe • Rowerownie i wózkownie • Miejsca postojowe naziemne i w halach garażowych • Stojaki rowerowe • Stacja ładowania aut elektrycznych • Plac zabaw • Samoobsługowa stacja naprawy rowerów • Lokale usługowe na terenie inwestycji Ulokuj kapitał w mieszkaniu w Katowicach Lokalizacja osiedla Murapol Nowe Bogucice sprzyja inwestycji w nieruchomości i czerpaniu korzyści z wynajmu. Bliskość centrum miasta i wielkich obiektów koncertowych generują wysoki potencjał najemców krótkoterminowych ze strony turystów, jak i uczestników wydarzeń kulturalnych. Z kolei zainteresowanie długoterminowych najemców można upatrywać w studentach położonych nieopodal Uniwersytetu Śląskiego i Uniwersytetu Ekonomicznego.
Dostępne mieszkania w tej inwestycji
| Nazwa | Rzut | Pokoje | Powierzchnia | Piętro | Cena | Status |