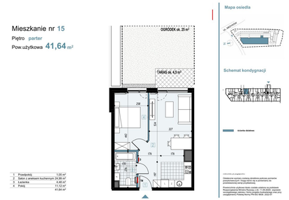
Nowe mieszkanie na sprzedaż 2 pokoje Katowice Zespół Dzielnic Zachodnich, 41,64 m2, parter - nr 15
Oferta sprzedaży od Platforma Mieszkaniowa
Katowice, Ligota-Panewniki, ul. Medyków 32 (6,7km od centrum Katowic)

Główne cechy mieszkania
Ważne informacje
Mieszkanie 2 pokojowe
Dodatkowe informacje
Udogodnienia

Winda
Przyroda

Park

Las
Inwestycja
Medyków 32
śląskie, Katowice, Zespół Dzielnic Zachodnich, Ligota-Panewniki
Inwestycja Apartamenty Medyków 32 oferuje 90 mieszkań o zróżnicowanych metrażach, od 40 do 82 m2, które zapewniają przestrzeń dostosowaną do indywidualnych potrzeb każdego mieszkańca. Przestronne tarasy to doskonałe miejsce na poranną kawę z widokiem na otaczającą przyrodę, a duże przeszklenia okien zapewniają obfitą ilość naturalnego światła. Budynek Apartamenty Medyków 32 to prawdziwa perełka architektoniczna. Został zaprojektowany w duchu modernizmu, co nadaje mu wyjątkowy charakter i elegancję. Wnętrza mieszkań to kwintesencja komfortu i funkcjonalności, przy jednoczesnym zachowaniu estetycznego piękna. Dbałość o detale architektoniczne i nowoczesne rozwiązania technologiczne sprawiają, że jest to miejsce, które zachwyca zarówno wyglądem, jak i funkcjonalnością. W Apartamentach Medyków 32 znalazło się wiele udogodnień dla mieszkańców. Dwie windy, parking podziemny, doskonale zaprojektowana mała architektura zapewniają wygodę i komfort codziennego życia. Dopełnieniem jest elegancka i nowoczesna elewacja, która nadaje budynkowi wyjątkowego charakteru. Ekologiczne aspekty inwestycji są niezwykle ważne. Położone w niedalekim sąsiedztwie Park Zadole, Dolina Ślepiotki oraz kompleks Lasów Panewnickich to miejsca, gdzie natura spotyka się z nowoczesnością. Inwestycja jest także wyposażona w instalację fotowoltaiczną, co pozwala na bardziej efektywne wykorzystanie energii słonecznej i zmniejszenie wpływu na środowisko.
Dostępne mieszkania w tej inwestycji
| Nazwa | Rzut | Pokoje | Powierzchnia | Piętro | Cena | Status |