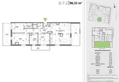
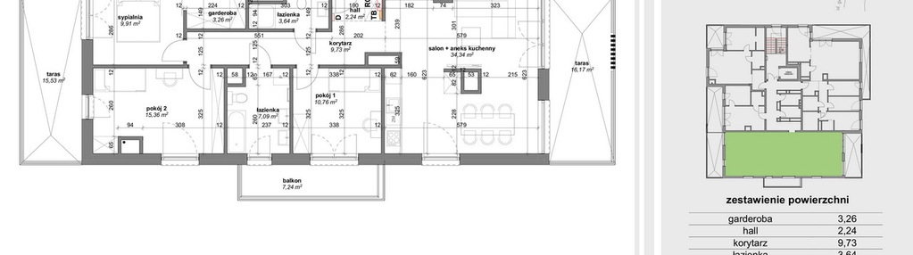
Nowe mieszkanie na sprzedaż 4 pokoje Katowice Zespół Dzielnic Śródmiejskich, 95,30 m2, 7 piętro - nr D.7.2
Oferta sprzedaży od Platforma Mieszkaniowa
Katowice, Osiedle Paderewskiego-Muchowiec, ul. gen. Kazimierza Pułaskiego (2,1km od centrum Katowic)

Główne cechy mieszkania
Ważne informacje
Mieszkanie 4 pokojowe
Dodatkowe informacje
Udogodnienia

Plac zabaw

Winda
Przyroda

Staw

Park
Inwestycja
Park Przy Stawach
śląskie, Katowice, Zespół Dzielnic Śródmiejskich, Osiedle Paderewskiego-Muchowiec
Inwestycja w najchętniej wybieranej dzielnicy Katowic. Zespół 6 budynków, od 6 do 8 pięter, bezpośrednio przy dolinie Trzech Stawów. Inwestycja dla osób ceniących sobie bliskość centrum i jednocześnie rozległych terenów zielonych. Ładna, ponadczasowa forma budynków, bezpretensjonalna architektura i wysoki standard to wyróżniki tej inwestycji. Inwestycja podzielona została na dwa etapy. Doskonała propozycja i dla inwestorów i dla osób szukających mieszkania dla siebie. Ogrzewanie podłogowe, wysokości mieszkań - 2,78 cm., bardzo wysoka jakość. Nowoczesne osiedle mieszkaniowe zlokalizowane tuż obok Doliny Trzech Stawów . Inwestycja to kompleks 6 budynków z bardzo zróżnicowaną ofertą mieszkań. Proste formy, ponadczasowa architektura i wyjątkowa lokalizacja - to miejsce, którego szukasz.
Dostępne mieszkania w tej inwestycji
| Nazwa | Rzut | Pokoje | Powierzchnia | Piętro | Cena | Status |