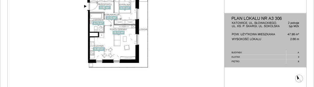
Nowe mieszkanie na sprzedaż 2 pokoje Katowice Zespół Dzielnic Śródmiejskich, 47,98 m2, 8 piętro - nr A3 306
Oferta sprzedaży od Archicom S.A.
Katowice, Śródmieście, ul. Sokolska (0,5km od centrum Katowic)

Główne cechy mieszkania
Ważne informacje
Mieszkanie 2 pokojowe
Dodatkowe informacje
Udogodnienia

Inteligentny dom

Rowerownia
Inwestycja
Mikato
śląskie, Katowice, Zespół Dzielnic Śródmiejskich, Śródmieście
W trzech segmentach połączonych wspólnym parterem powstanie w sumie 341 mieszkań, z balkonami i loggiami, dającymi niezaburzony widok na miasto oraz swobodę jakiej oczekujesz. I to zaledwie 5 min drogi od Rynku. Superbudynek o precyzyjnie rozplanowanej strukturze mieszkalnej tworzą w większości popularne i sprawdzone funkcjonalnie – jedno i dwupokojowe apartamenty z widokiem na miasto.
Dostępne mieszkania w tej inwestycji
| Nazwa | Rzut | Pokoje | Powierzchnia | Piętro | Cena | Status |