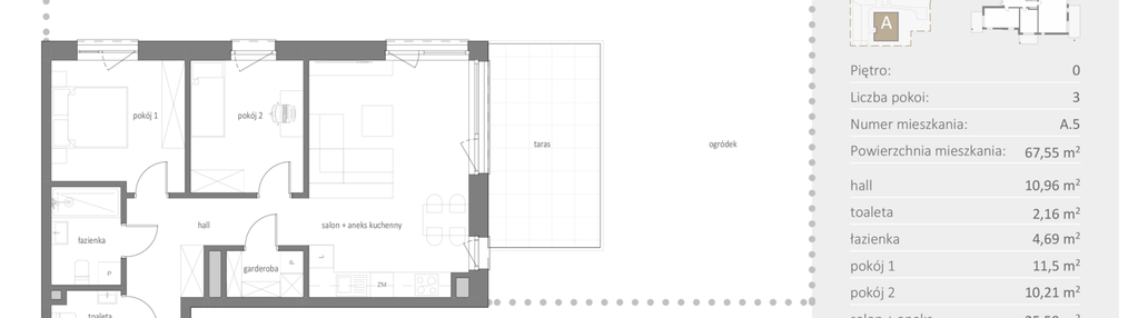
Nowe mieszkanie na sprzedaż 3 pokoje Katowice Zespół Dzielnic Zachodnich, 67,55 m2, parter - nr A.05
Oferta sprzedaży od OPAL PRESTIGE Sp. z o.o.
Katowice, Ligota-Panewniki, ul. Studencka 19 (6,9km od centrum Katowic)

Główne cechy mieszkania
Ważne informacje
Mieszkanie 3 pokojowe
Dodatkowe informacje
Udogodnienia

Plac zabaw

Winda

Wózkarnia

Rowerownia

Klimatyzacja

Inteligentny dom
Przyroda

Park
Inwestycja
Ville Garden
śląskie, Katowice, Zespół Dzielnic Zachodnich, Ligota-Panewniki
Osiedle Ville Garden w Katowicach wyróżnia się nie tylko nowoczesnymi mieszkaniami, ale również unikalną, prestiżową architekturą, która stanowi ponadczasową i uniwersalną wartość procentującą latami. Projekt urzeka błyskotliwym designem, bogactwem zastosowanych rozwiązań technologicznych oraz użyciem wysokiej klasy materiałów wykończeniowych. Architektura Ville Garden została starannie zaplanowana, aby wpisywać się w naturalny krajobraz i jednocześnie oferować nowoczesne i funkcjonalne miejsca do życia. Przemyślane detale, wysokie standardy oraz dbałość o każdy element sprawiają, że mieszkańcy mogą cieszyć się nie tylko estetyką, ale także komfortem codziennego życia. Osiedle to kompleks trzech czteropiętrowych budynków. W każdym znajdują się 33 mieszkania, winda oraz wózkownia/rowerownia. Parking podziemny znajdujący się pod kompleksem posiada, aż 127 miejsc parkingowych oraz 73 komórki lokatorskie. Na terenie osiedla ulokowano dodatkowe 23 miejsca parkingowe. Mieszkania w Ville Garden są zaprojektowane z myślą o szerokim wachlarzu potrzeb naszych klientów. W budynku powstaną lokale od 30 do 115 m2 (dwupokojowe, trzypokojowe i czteropokojowe). Dla miłośników przestrzeni zaprojektowaliśmy mieszkania parterowe z ogrodem lub na wyższych kondygnacjach z przestronnymi balkonami. Dla najbardziej wymagających powstaną apartamenty widokowe na najwyższej kondygnacji budynków, wyposażone w duże tarasy i antresolę. W Ville Garden zadbaliśmy także o poczucie bezpieczeństwa, prywatności i wysokiego komfortu mieszkania. Monitoring, zamknięty charakter osiedla oraz portiernia gwarantują mieszkańcom spokój i wysoki komfort życia.
Dostępne mieszkania w tej inwestycji
| Nazwa | Rzut | Pokoje | Powierzchnia | Piętro | Cena | Status |