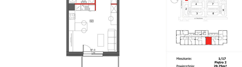
Nowe mieszkanie na sprzedaż 1 pokój Kąty Wrocławskie, 29,75 m2, 2 piętro - nr 1/17
Oferta sprzedaży od Platforma Mieszkaniowa
Kąty Wrocławskie, ul. Józefa Mireckiego

Główne cechy mieszkania
Ważne informacje
Mieszkanie 1 pokojowe
Dodatkowe informacje
Udogodnienia

Patio / Dziedziniec
Inwestycja
Słoneczny Zakątek
dolnośląskie, wrocławski, Kąty Wrocławskie
Słoneczny Zakątek to wyjątkowe miejsce tuż przy samej Dolinie Bystrzycy, z dostępem do wszystkich atutów Kątów Wrocławskich. Obecnie rozpoczynamy budowę nowych etapów osiedla, gdzie nasi Klienci będą mogli wybrać mieszkanie spośród szerokiej oferty lokali, od kawalerek, poprzez mieszkania 2- i 3-pokojowe, aż do apartamentów 4-pokojowych. Świetna lokalizacja przy ulicy Bazyliowej, zapewni Mieszkańcom wygodny i szybki dojazd do centrum. • ogródki lub balkony • duży teren rekreacyjny • garaże podziemne
Dostępne mieszkania w tej inwestycji
| Nazwa | Rzut | Pokoje | Powierzchnia | Piętro | Cena | Status |