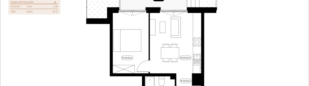
Nowe mieszkanie na sprzedaż 2 pokoje Kraków Prądnik Biały, 36,44 m2, parter - nr 0.06
Oferta sprzedaży od Hammak
Kraków, Prądnik Biały, ul. Białoprądnicka 5 (3,1km od centrum Krakowa)

Główne cechy mieszkania
Ważne informacje
Mieszkanie 2 pokojowe
Dodatkowe informacje
Udogodnienia

Winda

Rowerownia

Klimatyzacja
Inwestycja
Białoprądnicka Park
małopolskie, Kraków, Prądnik Biały
Komfortowe mieszkania w otoczeniu parku i miejskich udogodnień Białoprądnicka Park to nowoczesny projekt mieszkaniowy, usytuowany w dzielnicy Prądnik Biały, bezpośrednio sąsiadujący z malowniczym Parkiem Białoprądnickim. W dwupiętrowym budynku powstanie 36 mieszkań o powierzchniach od 28 m² do 124 m², dzięki czemu każdy znajdzie tutaj odpowiednią przestrzeń do życia. W części parteru zaplanowano również trzy lokale usługowe. Główne zalety naszej inwestycji - funkcjonalne układy mieszkań o zróżnicowanej powierzchni - bezpośrednie sąsiedztwo terenów zielonych Parku Białoprądnickiego - teren zagospodarowany zielenią i elementami małej architektury - dodatkowe udogodnienia takie jak filtry antysmogowe w mieszkaniach czy myjnia rowerowa dostępna na poziomie -1 - atrakcyjne części wspólne
Dostępne mieszkania w tej inwestycji
| Nazwa | Rzut | Pokoje | Powierzchnia | Piętro | Cena | Status |