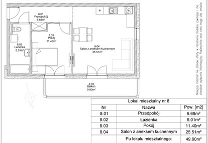
Nowe mieszkanie na sprzedaż 2 pokoje Kraków Bieżanów-Prokocim, 49,60 m2, 2 piętro - nr 8
Oferta sprzedaży od TAD-INVEST Drożdż
RezerwacjaKraków, Bieżanów-Prokocim, ul. gen. J. Jasińskiego 20 (5,7km od centrum Krakowa)

Główne cechy mieszkania
Ważne informacje
Mieszkanie 2 pokojowe
Dodatkowe informacje
Udogodnienia

Klimatyzacja

Winda
Przyroda

Park
Inwestycja
Apartamenty Jasińskiego
małopolskie, Kraków, Bieżanów-Prokocim
Przy ul. gen. Jakuba Jasińskiego 20 w Krakowie powstaje kameralna inwestycja – elegancki budynek wielorodzinny zaprojektowany z myślą o wygodzie, prywatności i nowoczesnym stylu życia. To idealne miejsce dla osób, które cenią nowoczesne rozwiązania, funkcjonalne układy mieszkań oraz spokojne otoczenie z szybkim dostępem do miasta. Inwestycja obejmuje jedynie 13 lokali. Dostępne są mieszkania o powierzchniach od 33 m² do 90 m², dzięki czemu każdy znajdzie przestrzeń dopasowaną do swoich potrzeb – od kompaktowych apartamentów po większe, rodzinne układy. Mieszkania na parterze posiadają prywatne ogródki, natomiast lokale na wyższych kondygnacjach wyposażone są w przestronne balkony. Inwestycja posiada także garaż podziemny, w którym przewidziano 17 miejsc postojowych dostępnych dla mieszkańców. W standardzie przewidziano nowoczesne udogodnienia, takie jak klimatyzacja, ogrzewanie podłogowe, filtry antysmogowe, monitoring oraz winda prowadząca bezpośrednio do garażu podziemnego.
Dostępne mieszkania w tej inwestycji
| Nazwa | Rzut | Pokoje | Powierzchnia | Piętro | Cena | Status |