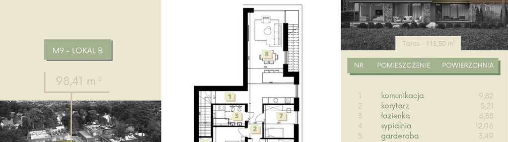
Nowe mieszkanie na sprzedaż 4 pokoje Kraków Zwierzyniec, 101,03 m2, 1 piętro - nr M9-2
Oferta sprzedaży od Platforma Mieszkaniowa
Kraków, Zwierzyniec, ul. Morelowa (5,2km od centrum Krakowa)

Główne cechy mieszkania
Ważne informacje
Mieszkanie 4 pokojowe
Dodatkowe informacje
Udogodnienia

Inteligentny dom

Klimatyzacja
Przyroda

Rzeka

Park
Inwestycja
Morelife Apartments etap I i II
małopolskie, Kraków, Zwierzyniec
Wentylacja mechaniczna nawiewowo - wywiewna z rekuperatorem, Instalacja pod klimatyzację, wewnętrzna instalacja w salonie i sypialniach, Ogrzewanie podłogowe w całym apartamencie, sterownik w każdym pomieszczeniu, Inteligentny dom - instalacja BMS w oparciu o system LOXONE Wyjątkowy, nowoczesny i przemyślany projekt. Inwestycja przyciąga wzrok pod kątem wizualnym ale zapewnia również wszystkie udogodnienia praktyczne. Inwestycja wykonana jest z dbałością o najdrobniejsze szczegóły, zwracając uwagę na trendy panujące w nowym, prestiżowym budownictwie. * Do każdego z mieszkań przynależą 2 miejsca postojowe za dodatkową kwotę : 100 000,00 zł
Dostępne mieszkania w tej inwestycji
| Nazwa | Rzut | Pokoje | Powierzchnia | Piętro | Cena | Status |