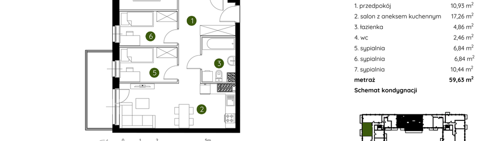
Nowe mieszkanie na sprzedaż 4 pokoje Kraków Prądnik Biały, 59,63 m2, 4 piętro - nr 2.B.4.08
Oferta sprzedaży od Murapol Real Estate
Kraków, Prądnik Biały, ul. Piaszczysta (4,1km od centrum Krakowa)

Główne cechy mieszkania
Ważne informacje
Mieszkanie 4 pokojowe
Dodatkowe informacje
Udogodnienia

Inteligentny dom

Winda
Inwestycja
Murapol Prado
małopolskie, Kraków, Prądnik Biały
WYBRANE MIESZKANIA W PAKIECIE Z MIEJSCEM POSTOJOWYM W CENIE 20000 ZŁ- 52000 ZŁ I/LUB KOMÓRKĄ LOKATORSKĄ W CENIE 13200 ZŁ-21000 ZŁ . O SZCZEGÓŁY ZAPYTAJ DEWELOPERA. Zamieszkaj na urokliwym Prądniku Białym Murapol Prado to nowocześnie zaprojektowana inwestycja w malowniczym rejonie Doliny Prądnika na północny Krakowa, nieopodal granicy z gminą Zielonki. Sąsiedztwo osiedla stanowią rozległe zielone tereny, które pozwalają na co dzień obcować z naturą i odetchnąć od intensywnego miejskiego życia w centralnych dzielnicach Krakowa. Stworzyliśmy to osiedle dla rodzin z dziećmi, par czy singli, co udowadnia szeroka oferta mieszkań o zróżnicowanych metrażach od 25 do nawet 70 mkw. i kompaktowych 1-, 2-, 3- i 4-pokojowych układach wnętrz. Zadbaliśmy o wysoką jakość przestrzeni wspólnych, by mieszkańcy czuli się tutaj komfortowo i nawiązywali sąsiedzkie relacje. Trzy i cztero-piętrowe bryły budynków Murapol Prado wyrażają kameralność, wpisując się w sielski charakter okolicy i jej zabudowań. A przestrzennie zaprojektowane obiekty zapewnią wysokie poczucie prywatności mieszkańcom. Wybierz mieszkanie na pokolenia w Murapol Prado • Home Management System to instalacja, która będzie zaszyta w murach budynków Murapol Prado. Dzięki temu mieszkańcy będą mieli możliwość korzystać z najnowocześniejszych urządzeń smart home, w tym m.in. zarządzać ogrzewaniem, oświetleniem czy zaworami wody. • Świeże powietrze we wnętrzach zapewni pakiet antysmogowy, czyli filtry montowane we wszystkich nawiewnikach okiennych w mieszkaniach. • Wysoki standard wykończenia części wspólnych charakteryzuje się m.in. wykorzystaniem trwałych płytek gresowych o delikatnym i minimalistycznym designie, dekoracyjnych paneli meblowych imitujących drewno czy energooszczędnej oprawy liniowej LED. Duże lustra oraz estetyczne, wykonane ze stali nierdzewnej skrzynki pocztowe będą częścią holi wejściowych. • Do mieszkań na parterze będą przynależeć wybrukowane kostką tarasy z zielonymi ogródkami o powierzchni nawet 123 mkw. • Mieszkania na piętrach będą miały nawet 2 przestronne balkony. Termoizolacyjne łączniki balkonowe zapobiegną utracie ciepła z wnętrza, tym samym ograniczając zużycie energii w mieszkaniu. • Okna portfenetrowe zapewnią zaś doskonałe nasłonecznienie wnętrz. • Z myślą o użytkownikach coraz popularniejszych samochodów elektrycznych na terenie inwestycji zostanie zainstalowana stacja ładowania. • Na terenie inwestycji zapewniono miejsca postojowe w halach garażowych i naziemne oraz boksy rowerowe. • Dachy budynków Murapol Prado zostaną pokryte zielenią ekstensywną, która m.in. oczyszcza powietrze czy obniża temperaturę otoczenia. • Dla najmłodszych powstanie plac zabaw.
Dostępne mieszkania w tej inwestycji
| Nazwa | Rzut | Pokoje | Powierzchnia | Piętro | Cena | Status |