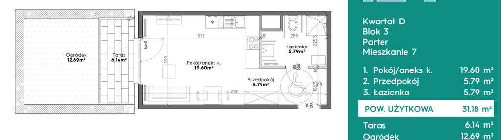
Nowe mieszkanie na sprzedaż 1 pokój Kraków Prądnik Biały, 31,18 m2, parter - nr D3-7
Oferta sprzedaży od EKOPARK
Kraków, Prądnik Biały, ul. Piaszczysta 37 (4,3km od centrum Krakowa)

Główne cechy mieszkania
Ważne informacje
Mieszkanie 1 pokojowe
Dodatkowe informacje
Udogodnienia

Usługi w budynku

Rowerownia

Winda

Plac zabaw

Boisko
Przyroda

Rzeka

Park
Inwestycja
Dostępne mieszkania w tej inwestycji
| Nazwa | Rzut | Pokoje | Powierzchnia | Piętro | Cena | Status |