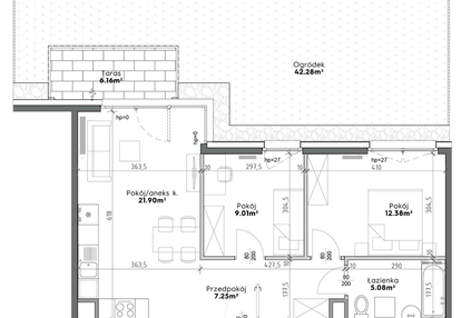
Nowe mieszkanie na sprzedaż 3 pokoje Kraków Prądnik Biały, 55,62 m2, parter - nr D3-1
Oferta sprzedaży od EKOPARK
Kraków, Prądnik Biały, ul. Piaszczysta 37 (4,3km od centrum Krakowa)

Główne cechy mieszkania
Ważne informacje
Mieszkanie 3 pokojowe
Dodatkowe informacje
Udogodnienia

Winda

Plac zabaw

Boisko

Rowerownia

Usługi w budynku
Przyroda

Rzeka

Park
Inwestycja
Dostępne mieszkania w tej inwestycji
| Nazwa | Rzut | Pokoje | Powierzchnia | Piętro | Cena | Status |