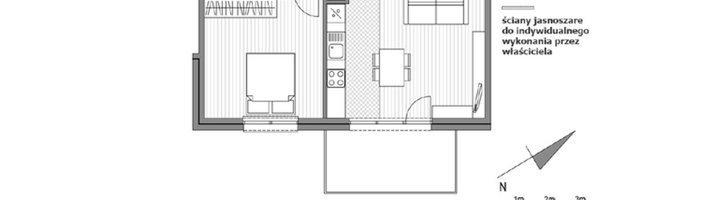
Nowe mieszkanie na sprzedaż 2 pokoje Kraków Prądnik Biały, 48,07 m2, 1 piętro - nr 1.2-5
Oferta sprzedaży od Dom-Bud M. Szaflarski Sp. j.
Kraków, Prądnik Biały, ul. Stawowa 242 i 242a (6,3km od centrum Krakowa)


Główne cechy mieszkania
Ważne informacje
Mieszkanie 2 pokojowe
Dodatkowe informacje
Udogodnienia

Rowerownia
Inwestycja

Stawowa
małopolskie, Kraków, Prądnik Biały
Podmiejski klimat w mieście – czyli inwestycja przy przy ul. Stawowej zlokalizowanej w Bronowicach Wielkich, jednej z najchętniej zamieszkiwanych dzielnic Krakowa. Połączenie bliskości natury z sąsiedztwem domków jednorodzinnych tworzy sielankowy charakter, bez przenoszenia się poza granice miasta. To tutaj zaplanowano realizację trzech dwupiętrowych budynków składających się z dwóch wyraźnie oddzielonych segmentów każdy. Aktualnie w sprzedaży znajduje się Budynek 1 z funkcjonalnie zaprojektowanymi mieszkaniami o zróżnicowanych powierzchniach od 33 m2 do 95 m2. Dodatkowym atutem jest wysokość lokali, która wynosi 2,65 m. Każdy kompleks dwóch segmentów połączony jest halą garażową gdzie właściciele dwuśladów oraz jednośladów znajdą coś dla siebie. Mowa tu bowiem o zamykanych boksach garażowych oraz rowerowni. Atuty Innowacyjnym rozwiązaniem, którym cieszy się inwestycja są panele fotowoltaiczne mające za zadanie obniżać koszty energii części wspólnych. Natomiast wykorzystanie wysokiej klasy materiałów na części elewacji w postaci klinkieru, płyt HPL firmy Trespa, blach tytanowo cynkowych, a także nowoczesne wykończenie części wspólnych, podnoszą sferę wizualną codziennego życia. Bezpieczeństwo przyszłych mieszkańców zapewnią: monitoring części wspólnych, instalacja video domofonowa, rolety zewnętrzne i oszklenie antywłamaniowe okien i drzwi balkonowych mieszkań zlokalizowanych na parterze oraz antywłamaniowe drzwi wejściowe do każdego z mieszkań.
Dostępne mieszkania w tej inwestycji
Nazwa | Rzut | Pokoje | Powierzchnia | Piętro | Cena | Status |